Elected Officials
Courts
Departments
Initiatives
Open Government
About
Login / Register
Home
/
Property & Tax Records
/
Property Records
/
Property & Tax Search
/
Parcel Profile
/
Print View
Search for Another Parcel
Parcel Profile
Historical Card
Sketches
Photos
Tax Map
Taxes
Print View
Print This Page
Address: 130 WRIGHT ST
Parcel: 06022098001700
Parcel Profile
Address
130 | WRIGHT | ST
Street Status
PAVED
School District
CORRY AREA SCHOOL
Acreage
0.1148
Classification
R
Land Use Code
SINGLE FAMILY
Legal Description
130 WRIGHT ST TR 52 50X100
Square Feet
1499
Topo
LEVEL
Utility
ALL PUBLIC
Zoning
Please contact your municipal zoning officer
Deed Book
2025
Deed Page
021087
2026 Tax Values
Land Value / Taxable
11,500 / 11,500.00
Building Value / Taxable
43,500 / 43,500.00
Total Value / Taxable
55,000 / 55,000.00
Clean & Green
Inactive
Homestead Status
Inactive
Farmstead Status
Inactive
Lerta Amount
0
Lerta Expiration Year
0
Residential Data
Card 1
Style
OLD STYLE
Basement
FULL
Year Built
1900
Exterior Wall
ALUMINUM/VINYL
Total Living Area
1499
Full Baths
1
Half Baths
0
Fuel Type
GAS
Heating
CENTRAL A/C
Heating System
FORCED AIR
Stories
2.0
Total Bedrooms
3
Total Family Rooms
0
Total Rooms
7
Fireplaces
1
Other Buildings & Yards
Description
Built
Width
Length
Area
FRAME OR CB DETACHED GARAGE
1960
18
20
360
Sales History
Sale Date
Type
Price
Book / Page
Other Info
11/25/2025
LAND & BUILDING
125000
2025 / 021087
SPECIAL WARRANTY DEED
3/21/1977
0
1256 / 0182
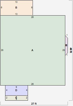
Parcel Sketches
Residential Card 1
A
MAIN
728 square feet
B
OFP OPEN FRAME PORCH
78 square feet
C
OFP OPEN FRAME PORCH
18 square feet
D
1S FR ONE STORY FRAME
36 square feet
E
UNFIN BSMT BASEMENT UNFINISHED FRBAY FRAME BAY
7 square feet
Parcel Images
Please note:
this tab is for informational purposes only and may not show all delinquencies, see the Taxes tab for more accurate delinquent taxes due.