Elected Officials
Courts
Departments
Initiatives
Open Government
About
Login / Register
Home
/
Property & Tax Records
/
Property Records
/
Property & Tax Search
/
Parcel Profile
/
Print View
Search for Another Parcel
Parcel Profile
Historical Card
Sketches
Photos
Tax Map
Taxes
Print View
Print This Page
Address: 1435 SCIOTA RD
Parcel: 06047019001302
Parcel Profile
Address
1435 | SCIOTA | RD
Street Status
PAVED
School District
CORRY AREA SCHOOL
Acreage
0.5300
Classification
R
Land Use Code
SINGLE FAMILY
Legal Description
1435 SCIOTA RD 99.92 X 267.6
Square Feet
2624
Topo
LEVEL
Utility
ALL PUBLIC
Zoning
Please contact your municipal zoning officer
Deed Book
1255
Deed Page
1370
2026 Tax Values
Land Value / Taxable
15,700 / 15,700.00
Building Value / Taxable
55,230 / 55,230.00
Total Value / Taxable
70,930 / 70,930.00
Clean & Green
Inactive
Homestead Status
Active
Farmstead Status
Inactive
Lerta Amount
0
Lerta Expiration Year
0
Residential Data
Card 1
Style
OLD STYLE
Basement
PART
Year Built
1897
Exterior Wall
FRAME
Total Living Area
2624
Full Baths
1
Half Baths
1
Fuel Type
GAS
Heating
CENTRAL
Heating System
HOT WATER
Stories
2.0
Total Bedrooms
3
Total Family Rooms
0
Total Rooms
8
Fireplaces
1
Other Buildings & Yards
No OBY Data Found
Sales History
Sale Date
Type
Price
Book / Page
Other Info
7/28/2005
LAND & BUILDING
58000
1255 / 1370
FIDUCIARY DEED
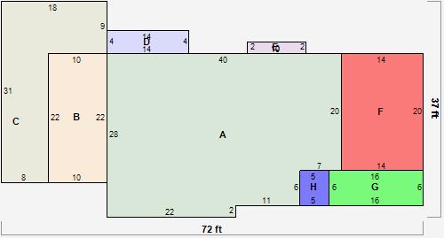
Parcel Sketches
Residential Card 1
A
MAIN
1042 square feet
B
1S FR ONE STORY FRAME
220 square feet
C
MA_PT CONC/MAS PATIO
338 square feet
D
EFP ENCL FRAME PORCH
56 square feet
E
FRBAY FRAME BAY FRBAY FRAME BAY
20 square feet
F
FROVR FRAME OVERHANG
280 square feet
G
CANPY CANOPY
96 square feet
H
EFP ENCL FRAME PORCH
30 square feet
Parcel Images
Please note:
this tab is for informational purposes only and may not show all delinquencies, see the Taxes tab for more accurate delinquent taxes due.