Elected Officials
Courts
Departments
Initiatives
Open Government
About
Login / Register
Home
/
Property & Tax Records
/
Property Records
/
Property & Tax Search
/
Parcel Profile
/
Print View
Search for Another Parcel
Parcel Profile
Historical Card
Sketches
Photos
Tax Map
Taxes
Print View
Print This Page
Address: 1241 WHITE ST
Parcel: 07002001001100
Parcel Profile
Address
1241 | WHITE | ST
Street Status
PAVED
School District
CORRY AREA SCHOOL
Acreage
0.2764
Classification
R
Land Use Code
SINGLE FAMILY
Legal Description
1241 WHITE ST TR 33 86X140
Square Feet
1036
Topo
ROLLING
Utility
ALL PUBLIC
Zoning
Please contact your municipal zoning officer
Deed Book
2020
Deed Page
009592
2025 Tax Values
Land Value / Taxable
14,600 / 14,600.00
Building Value / Taxable
17,410 / 17,410.00
Total Value / Taxable
32,010 / 32,010.00
Clean & Green
Inactive
Homestead Status
Inactive
Farmstead Status
Inactive
Lerta Amount
0
Lerta Expiration Year
0
Residential Data
Card 1
Style
BUNGALOW
Basement
NONE
Year Built
1930
Exterior Wall
ALUMINUM/VINYL
Total Living Area
1036
Full Baths
1
Half Baths
0
Fuel Type
GAS
Heating
CENTRAL
Heating System
FORCED AIR
Stories
1.0
Total Bedrooms
2
Total Family Rooms
0
Total Rooms
7
Fireplaces
0
Other Buildings & Yards
Description
Built
Width
Length
Area
FRAME OR CB DETACHED GARAGE
1993
20
22
440
Sales History
Sale Date
Type
Price
Book / Page
Other Info
6/1/2020
LAND & BUILDING
26000
2020 / 009592
SPECIAL WARRANTY DEED
3/8/2018
LAND & BUILDING
0
2018 / 004348
SPECIAL WARRANTY DEED
6/19/1992
0
0217 / 1785
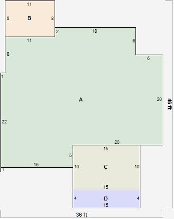
Parcel Sketches
Residential Card 1
A
MAIN
948 square feet
B
1S FR ONE STORY FRAME
88 square feet
C
EFP ENCL FRAME PORCH
150 square feet
D
WDDCK WOOD DECKS
60 square feet
Parcel Images