Elected Officials
Courts
Departments
Initiatives
Open Government
About
Login / Register
Home
/
Property & Tax Records
/
Property Records
/
Property & Tax Search
/
Parcel Profile
/
Print View
Search for Another Parcel
Parcel Profile
Historical Card
Sketches
Photos
Tax Map
Taxes
Print View
Print This Page
Address: 1277 79 WHITE ST
Parcel: 07002002001000
Parcel Profile
Address
1277 | 79 | WHITE | ST
Street Status
PAVED
School District
CORRY AREA SCHOOL
Acreage
0.3444
Classification
R
Land Use Code
MULTIPLE DWELLINGS
Legal Description
1279 WHITE ST 100X150
Square Feet
2480
Topo
LEVEL
Utility
ALL PUBLIC
Zoning
Please contact your municipal zoning officer
Deed Book
2012
Deed Page
017562
2026 Tax Values
Land Value / Taxable
21,000 / 21,000.00
Building Value / Taxable
85,420 / 85,420.00
Total Value / Taxable
106,420 / 106,420.00
Clean & Green
Inactive
Homestead Status
Active
Farmstead Status
Inactive
Lerta Amount
0
Lerta Expiration Year
0
Residential Data
Card 1
Style
BUNGALOW
Basement
PART
Year Built
1920
Exterior Wall
ALUMINUM/VINYL
Total Living Area
1264
Full Baths
1
Half Baths
0
Fuel Type
GAS
Heating
CENTRAL
Heating System
FORCED AIR
Stories
1.0
Total Bedrooms
3
Total Family Rooms
1
Total Rooms
6
Fireplaces
0
Card 2
Style
BUNGALOW
Basement
NONE
Year Built
1920
Exterior Wall
ALUMINUM/VINYL
Total Living Area
1216
Full Baths
1
Half Baths
0
Fuel Type
GAS
Heating
CENTRAL
Heating System
FORCED AIR
Stories
1.0
Total Bedrooms
2
Total Family Rooms
1
Total Rooms
5
Fireplaces
0
Other Buildings & Yards
No OBY Data Found
Sales History
Sale Date
Type
Price
Book / Page
Other Info
7/3/2012
LAND & BUILDING
0
2012 / 017562
SPECIAL WARRANTY DEED
2/26/2009
LAND & BUILDING
0
1545 / 1428
QUIT CLAIM DEED
10/7/1999
0
0666 / 2050
Parcel Sketches
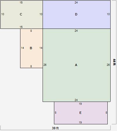
Residential Card 1
A
MAIN
624 square feet
B
WDDCK WOOD DECKS
112 square feet
C
1S FR ONE STORY FRAME
150 square feet
D
1S FR ONE STORY FRAME
240 square feet
E
EFP ENCL FRAME PORCH
152 square feet
Residential Card 2
A
MAIN
1216 square feet
B
FR GR FRAME GARAGE
704 square feet
C
OFP OPEN FRAME PORCH
70 square feet
Parcel Images
Please note:
this tab is for informational purposes only and may not show all delinquencies, see the Taxes tab for more accurate delinquent taxes due.