Elected Officials
Courts
Departments
Initiatives
Open Government
About
Login / Register
Home
/
Property & Tax Records
/
Property Records
/
Property & Tax Search
/
Parcel Profile
/
Print View
Search for Another Parcel
Parcel Profile
Historical Card
Sketches
Photos
Tax Map
Taxes
Print View
Print This Page
Address: 137 OHIO ST
Parcel: 07002002001300
Parcel Profile
Address
137 | OHIO | ST
Street Status
PAVED
School District
CORRY AREA SCHOOL
Acreage
0.3444
Classification
R
Land Use Code
SINGLE FAMILY
Legal Description
137 OHIO ST LS 32 & 37 100X150
Square Feet
1619
Topo
ROLLING
Utility
ALL PUBLIC
Zoning
Please contact your municipal zoning officer
Deed Book
2018
Deed Page
020550
2025 Tax Values
Land Value / Taxable
15,400 / 15,400.00
Building Value / Taxable
59,300 / 59,300.00
Total Value / Taxable
74,700 / 74,700.00
Clean & Green
Inactive
Homestead Status
Active
Farmstead Status
Inactive
Lerta Amount
0
Lerta Expiration Year
0
Residential Data
Card 1
Style
RANCH
Basement
PART
Year Built
1920
Exterior Wall
ALUMINUM/VINYL
Total Living Area
1619
Full Baths
1
Half Baths
0
Fuel Type
GAS
Heating
CENTRAL
Heating System
FORCED AIR
Stories
1.0
Total Bedrooms
3
Total Family Rooms
0
Total Rooms
6
Fireplaces
1
Other Buildings & Yards
Description
Built
Width
Length
Area
CANOPY
1990
10
10
100
FRAME UTILITY SHED
1990
10
12
120
Sales History
Sale Date
Type
Price
Book / Page
Other Info
10/4/2018
LAND & BUILDING
0
2018 / 020550
SPECIAL WARRANTY DEED
1/26/2015
LAND & BUILDING
0
2015 / 001404
SPECIAL WARRANTY DEED
10/4/1957
0
0764 / 0543
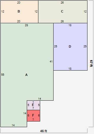
Parcel Sketches
Residential Card 1
A
MAIN
1344 square feet
B
1S FR ONE STORY FRAME
240 square feet
C
OMP OPEN MASONRY PORCH
312 square feet
D
FR GR FRAME GARAGE
450 square feet
E
1S FR ONE STORY FRAME
35 square feet
F
OFP OPEN FRAME PORCH
42 square feet
Parcel Images