Elected Officials
Courts
Departments
Initiatives
Open Government
About
Login / Register
Home
/
Property & Tax Records
/
Property Records
/
Property & Tax Search
/
Parcel Profile
/
Print View
Search for Another Parcel
Parcel Profile
Historical Card
Sketches
Photos
Tax Map
Taxes
Print View
Print This Page
Address: 1341 N CENTER ST
Parcel: 07002003000300
Parcel Profile
Address
1341 | N | CENTER | ST
Street Status
PAVED
School District
CORRY AREA SCHOOL
Acreage
1.4000
Classification
R
Land Use Code
SINGLE FAMILY
Legal Description
1341 N CENTER ST 1.4 AC
Square Feet
1999
Topo
ROLLING
Utility
ALL PUBLIC
Zoning
Please contact your municipal zoning officer
Deed Book
2013
Deed Page
032593
2026 Tax Values
Land Value / Taxable
21,800 / 21,800.00
Building Value / Taxable
84,500 / 84,500.00
Total Value / Taxable
106,300 / 106,300.00
Clean & Green
Inactive
Homestead Status
Inactive
Farmstead Status
Inactive
Lerta Amount
0
Lerta Expiration Year
0
Residential Data
Card 1
Style
RANCH
Basement
FULL
Year Built
1956
Exterior Wall
ALUMINUM/VINYL
Total Living Area
1999
Full Baths
2
Half Baths
0
Fuel Type
GAS
Heating
CENTRAL
Heating System
FORCED AIR
Stories
1.0
Total Bedrooms
3
Total Family Rooms
0
Total Rooms
7
Fireplaces
0
Other Buildings & Yards
Description
Built
Width
Length
Area
FRAME UTILITY SHED
1995
12
18
216
Sales History
Sale Date
Type
Price
Book / Page
Other Info
12/19/2013
LAND & BUILDING
54000
2013 / 032593
FIDUCIARY DEED
12/18/2008
LAND & BUILDING
0
1536 / 0285
QUIT CLAIM DEED
8/17/2000
0
0721 / 0513
3/18/1997
LAND & BUILDING
80000
488 / 1309
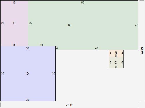
Parcel Sketches
Residential Card 1
A
MAIN
1590 square feet
B
1S FR ONE STORY FRAME
32 square feet
C
WDDCK WOOD DECKS
48 square feet
D
FR GR FRAME GARAGE
900 square feet
E
WDDCK WOOD DECKS
375 square feet
Parcel Images
Please note:
this tab is for informational purposes only and may not show all delinquencies, see the Taxes tab for more accurate delinquent taxes due.