Elected Officials
Courts
Departments
Initiatives
Open Government
About
Login / Register
Home
/
Property & Tax Records
/
Property Records
/
Property & Tax Search
/
Parcel Profile
/
Print View
Search for Another Parcel
Parcel Profile
Historical Card
Sketches
Photos
Tax Map
Taxes
Print View
Print This Page
Address: 75 W COLUMBUS AVE
Parcel: 07002003001700
Parcel Profile
Address
75 | W | COLUMBUS | AVE
Street Status
PAVED
School District
CORRY AREA SCHOOL
Acreage
0.3433
Classification
C
Land Use Code
OFFICE BLDGS/LABS/LIBRARIES
Legal Description
75 W COLUMBUS 82.5 X 181.25
Square Feet
1647
Topo
ROLLING
Utility
ALL PUBLIC
Zoning
Please contact your municipal zoning officer
Deed Book
2012
Deed Page
005431
2026 Tax Values
Land Value / Taxable
37,400 / 37,400.00
Building Value / Taxable
37,400 / 37,400.00
Total Value / Taxable
74,800 / 74,800.00
Clean & Green
Inactive
Homestead Status
Inactive
Farmstead Status
Inactive
Lerta Amount
0
Lerta Expiration Year
0
Commercial Data
Card 1
MIXED RESIDENTIAL/COMMERCIAL
Business Living Area - 1647
Year Built - 1900
Improvement Name - HUTZELMAN WALSH & WALSH
Value - 37110
Other Buildings & Yards
No OBY Data Found
Sales History
Sale Date
Type
Price
Book / Page
Other Info
3/2/2012
LAND & BUILDING
114500
2012 / 005431
DEED
4/16/2009
LAND & BUILDING
25000
1555 / 1778
DEED
1/27/2003
LAND & BUILDING
60000
0970 / 1069
DEED
10/13/1994
0
0358 / 0256
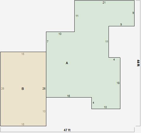
Parcel Sketches
Commercial Card 1
A
MAIN
1231 square feet
B
MAIN
416 square feet
Parcel Images
Please note:
this tab is for informational purposes only and may not show all delinquencies, see the Taxes tab for more accurate delinquent taxes due.