Elected Officials
Courts
Departments
Initiatives
Open Government
About
Login / Register
Home
/
Property & Tax Records
/
Property Records
/
Property & Tax Search
/
Parcel Profile
/
Print View
Search for Another Parcel
Parcel Profile
Historical Card
Sketches
Photos
Tax Map
Taxes
Print View
Print This Page
Address: 982 MEAD AVE
Parcel: 07010037001102
Parcel Profile
Address
982 | MEAD | AVE
Street Status
PAVED
School District
CORRY AREA SCHOOL
Acreage
1.1100
Classification
R
Land Use Code
SINGLE FAMILY
Legal Description
982 MEAD AVE 1.11 AC
Square Feet
1827
Topo
LEVEL
Utility
ALL PUBLIC
Zoning
Please contact your municipal zoning officer
Deed Book
0734
Deed Page
1783
2026 Tax Values
Land Value / Taxable
21,200 / 21,200.00
Building Value / Taxable
96,400 / 96,400.00
Total Value / Taxable
117,600 / 117,600.00
Clean & Green
Inactive
Homestead Status
Active
Farmstead Status
Inactive
Lerta Amount
0
Lerta Expiration Year
0
Residential Data
Card 1
Style
CONVENTIONAL
Basement
FULL
Year Built
1865
Exterior Wall
ALUMINUM/VINYL
Total Living Area
1827
Full Baths
2
Half Baths
0
Fuel Type
GAS
Heating
CENTRAL
Heating System
FORCED AIR
Stories
2.0
Total Bedrooms
3
Total Family Rooms
0
Total Rooms
7
Fireplaces
1
Other Buildings & Yards
Description
Built
Width
Length
Area
FRAME OR CB DETACHED GARAGE
2001
26
32
832
DETACHED OPEN FR PORCH
2001
10
32
320
Sales History
Sale Date
Type
Price
Book / Page
Other Info
10/30/2000
0
0734 / 1783
9/13/2000
LAND & BUILDING
87000
726 / 554
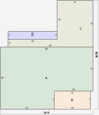
Parcel Sketches
Residential Card 1
A
MAIN
759 square feet
B
OFP OPEN FRAME PORCH OFP OPEN FRAME PORCH
98 square feet
C
1S FR ONE STORY FRAME
309 square feet
D
OFP OPEN FRAME PORCH
57 square feet
Parcel Images
Please note:
this tab is for informational purposes only and may not show all delinquencies, see the Taxes tab for more accurate delinquent taxes due.