Elected Officials
Courts
Departments
Initiatives
Open Government
About
Login / Register
Home
/
Property & Tax Records
/
Property Records
/
Property & Tax Search
/
Parcel Profile
/
Print View
Search for Another Parcel
Parcel Profile
Historical Card
Sketches
Photos
Tax Map
Taxes
Print View
Print This Page
Address: 17 W CONGRESS ST
Parcel: 07014033001400
Parcel Profile
Address
17 | W | CONGRESS | ST
Street Status
PAVED | SIDEWALK
School District
CORRY AREA SCHOOL
Acreage
0.2390
Classification
E
Land Use Code
EXEMPT SERVICE CONNECTED (VETERANS)
Legal Description
17 W CONGRESS ST 70X165 IRR
Square Feet
1886
Topo
LEVEL
Utility
ALL PUBLIC
Zoning
Please contact your municipal zoning officer
Deed Book
1562
Deed Page
0067
2026 Tax Values
Land Value / Taxable
14,100 / 14,100.00
Building Value / Taxable
57,020 / 57,020.00
Total Value / Taxable
71,120 / 71,120.00
Clean & Green
Inactive
Homestead Status
Inactive
Farmstead Status
Inactive
Lerta Amount
0
Lerta Expiration Year
0
Residential Data
Card 1
Style
OLD STYLE
Basement
FULL
Year Built
1900
Exterior Wall
COMPOSITION
Total Living Area
1886
Full Baths
1
Half Baths
1
Fuel Type
GAS
Heating
CENTRAL
Heating System
FORCED AIR
Stories
2.0
Total Bedrooms
3
Total Family Rooms
0
Total Rooms
6
Fireplaces
0
Other Buildings & Yards
Description
Built
Width
Length
Area
FRAME OR CB DETACHED GARAGE
1930
21
20
420
FRAME UTILITY SHED
1950
7
20
140
Sales History
Sale Date
Type
Price
Book / Page
Other Info
12/3/1984
0
1562 / 0067
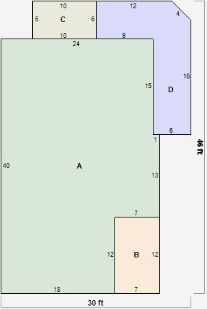
Parcel Sketches
Residential Card 1
A
MAIN
901 square feet
B
UNFIN BSMT BASEMENT UNFINISHED 1S FR ONE STORY FRAME
84 square feet
C
EFP ENCL FRAME PORCH
60 square feet
D
WDDCK WOOD DECKS
176 square feet
Parcel Images
Please note:
this tab is for informational purposes only and may not show all delinquencies, see the Taxes tab for more accurate delinquent taxes due.