Elected Officials
Courts
Departments
Initiatives
Open Government
About
Login / Register
Home
/
Property & Tax Records
/
Property Records
/
Property & Tax Search
/
Parcel Profile
/
Print View
Search for Another Parcel
Parcel Profile
Historical Card
Sketches
Photos
Tax Map
Taxes
Print View
Print This Page
Address: 71 ELK ST
Parcel: 07014037001700
Parcel Profile
Address
71 | ELK | ST
Street Status
PAVED
School District
CORRY AREA SCHOOL
Acreage
0.6175
Classification
R
Land Use Code
SINGLE FAMILY
Legal Description
71 ELK ST 145X264 IRR
Square Feet
1160
Topo
ROLLING
Utility
ALL PUBLIC
Zoning
Please contact your municipal zoning officer
Deed Book
1462
Deed Page
0363
2026 Tax Values
Land Value / Taxable
18,700 / 18,700.00
Building Value / Taxable
34,620 / 34,620.00
Total Value / Taxable
53,320 / 53,320.00
Clean & Green
Inactive
Homestead Status
Active
Farmstead Status
Inactive
Lerta Amount
0
Lerta Expiration Year
0
Residential Data
Card 1
Style
BUNGALOW
Basement
FULL
Year Built
1935
Exterior Wall
COMPOSITION
Total Living Area
1160
Full Baths
1
Half Baths
0
Fuel Type
GAS
Heating
CENTRAL
Heating System
FORCED AIR
Stories
1.0
Total Bedrooms
2
Total Family Rooms
0
Total Rooms
5
Fireplaces
0
Other Buildings & Yards
Description
Built
Width
Length
Area
FRAME OR CB DETACHED GARAGE
1935
18
22
396
FRAME UTILITY SHED
1960
9
29
261
Sales History
Sale Date
Type
Price
Book / Page
Other Info
7/6/1982
0
1462 / 0363
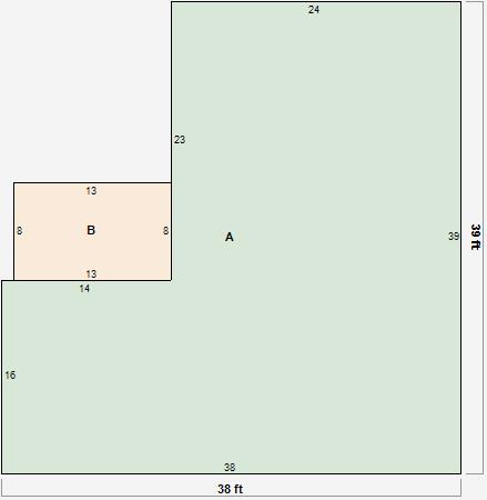
Parcel Sketches
Residential Card 1
A
MAIN
1160 square feet
B
EFP ENCL FRAME PORCH
104 square feet
Parcel Images
Please note:
this tab is for informational purposes only and may not show all delinquencies, see the Taxes tab for more accurate delinquent taxes due.