Elected Officials
Courts
Departments
Initiatives
Open Government
About
Login / Register
Home
/
Property & Tax Records
/
Property Records
/
Property & Tax Search
/
Parcel Profile
/
Print View
Search for Another Parcel
Parcel Profile
Historical Card
Sketches
Photos
Tax Map
Taxes
Print View
Print This Page
Address: 23 W SMITH ST
Parcel: 07023031001500
Parcel Profile
Address
23 | W | SMITH | ST
Street Status
PAVED | SIDEWALK
School District
CORRY AREA SCHOOL
Acreage
0.2282
Classification
R
Land Use Code
SINGLE FAMILY
Legal Description
23 W SMITH ST 70 X 142
Square Feet
2542
Topo
LEVEL
Utility
ALL PUBLIC
Zoning
Please contact your municipal zoning officer
Deed Book
1323
Deed Page
1487
2026 Tax Values
Land Value / Taxable
14,000 / 14,000.00
Building Value / Taxable
39,820 / 39,820.00
Total Value / Taxable
53,820 / 53,820.00
Clean & Green
Inactive
Homestead Status
Inactive
Farmstead Status
Inactive
Lerta Amount
0
Lerta Expiration Year
0
Residential Data
Card 1
Style
OLD STYLE
Basement
PART
Year Built
1900
Exterior Wall
FRAME
Total Living Area
2542
Full Baths
1
Half Baths
0
Fuel Type
GAS
Heating
CENTRAL
Heating System
FORCED AIR
Stories
2.0
Total Bedrooms
6
Total Family Rooms
0
Total Rooms
12
Fireplaces
0
Other Buildings & Yards
No OBY Data Found
Sales History
Sale Date
Type
Price
Book / Page
Other Info
5/1/2006
LAND & BUILDING
0
1323 / 1487
QUIT CLAIM DEED
7/20/2001
LAND & BUILDING
35000
790 / 352
7/5/2001
LAND & BUILDING
35000
790 / 352
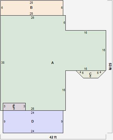
Parcel Sketches
Residential Card 1
A
MAIN
1244 square feet
B
EFP ENCL FRAME PORCH
150 square feet
C
FRBAY FRAME BAY
27 square feet
D
OFP OPEN FRAME PORCH
216 square feet
E
OFP OPEN FRAME PORCH 1S FR ONE STORY FRAME AT UN ATTIC-UNFINISHED
27 square feet
Parcel Images
Please note:
this tab is for informational purposes only and may not show all delinquencies, see the Taxes tab for more accurate delinquent taxes due.