Elected Officials
Courts
Departments
Initiatives
Open Government
About
Login / Register
Home
/
Property & Tax Records
/
Property Records
/
Property & Tax Search
/
Parcel Profile
/
Print View
Search for Another Parcel
Parcel Profile
Historical Card
Sketches
Photos
Tax Map
Taxes
Print View
Print This Page
Address: 110 W FREDERICK ST
Parcel: 07023042000600
Parcel Profile
Address
110 | W | FREDERICK | ST
Street Status
PAVED | SIDEWALK
School District
CORRY AREA SCHOOL
Acreage
0.8019
Classification
R
Land Use Code
TWO FAMILY
Legal Description
110 W FREDERICK ST 126X142 IRR
Square Feet
2293
Topo
LEVEL
Utility
ALL PUBLIC
Zoning
Please contact your municipal zoning officer
Deed Book
2010
Deed Page
030341
2026 Tax Values
Land Value / Taxable
21,000 / 21,000.00
Building Value / Taxable
53,600 / 53,600.00
Total Value / Taxable
74,600 / 74,600.00
Clean & Green
Inactive
Homestead Status
Inactive
Farmstead Status
Inactive
Lerta Amount
0
Lerta Expiration Year
0
Residential Data
Card 1
Style
OLD STYLE
Basement
PART
Year Built
1900
Exterior Wall
COMPOSITION
Total Living Area
2293
Full Baths
2
Half Baths
0
Fuel Type
GAS
Heating
CENTRAL
Heating System
FORCED AIR
Stories
2.0
Total Bedrooms
4
Total Family Rooms
0
Total Rooms
10
Fireplaces
0
Other Buildings & Yards
No OBY Data Found
Sales History
Sale Date
Type
Price
Book / Page
Other Info
12/3/2010
LAND & BUILDING
0
2010 / 030341
SPECIAL WARRANTY DEED
1/6/1997
0
0478 / 1701
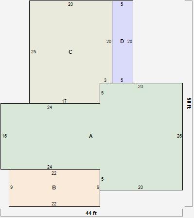
Parcel Sketches
Residential Card 1
A
MAIN
904 square feet
B
EFP ENCL FRAME PORCH
198 square feet
C
1S FR ONE STORY FRAME
485 square feet
D
OFP OPEN FRAME PORCH
100 square feet
Parcel Images