Elected Officials
Courts
Departments
Initiatives
Open Government
About
Login / Register
Home
/
Property & Tax Records
/
Property Records
/
Property & Tax Search
/
Parcel Profile
/
Print View
Search for Another Parcel
Parcel Profile
Historical Card
Sketches
Photos
Tax Map
Taxes
Print View
Print This Page
Address: 244 W FREDERICK ST
Parcel: 07023043000900
Parcel Profile
Address
244 | W | FREDERICK | ST
Street Status
PAVED
School District
CORRY AREA SCHOOL
Acreage
0.2189
Classification
R
Land Use Code
SINGLE FAMILY
Legal Description
244 W FREDERICK 64 X 148.58
Square Feet
1298
Topo
ROLLING
Utility
ALL PUBLIC
Zoning
Please contact your municipal zoning officer
Deed Book
2024
Deed Page
007102
2026 Tax Values
Land Value / Taxable
13,900 / 13,900.00
Building Value / Taxable
40,300 / 40,300.00
Total Value / Taxable
54,200 / 54,200.00
Clean & Green
Inactive
Homestead Status
Inactive
Farmstead Status
Inactive
Lerta Amount
0
Lerta Expiration Year
0
Residential Data
Card 1
Style
OLD STYLE
Basement
FULL
Year Built
1900
Exterior Wall
FRAME
Total Living Area
1298
Full Baths
2
Half Baths
0
Fuel Type
GAS
Heating
NON CENTRAL
Heating System
ELECTRIC
Stories
1.5
Total Bedrooms
3
Total Family Rooms
0
Total Rooms
6
Fireplaces
0
Other Buildings & Yards
No OBY Data Found
Sales History
Sale Date
Type
Price
Book / Page
Other Info
5/13/2024
LAND & BUILDING
42000
2024 / 007102
SPECIAL WARRANTY DEED
5/17/2023
LAND & BUILDING
0
2023 / 007611
DEED
8/22/2022
LAND & BUILDING
0
2022 / 018307
DEED
8/23/2013
LAND & BUILDING
0
2013 / 022481
FIDUCIARY DEED
8/22/2007
LAND & BUILDING
0
1441 / 0898
QUIT CLAIM DEED
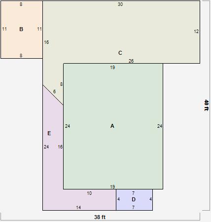
Parcel Sketches
Residential Card 1
A
MAIN
456 square feet
B
1S FR ONE STORY FRAME
88 square feet
C
UNFIN BSMT BASEMENT UNFINISHED 1S FR ONE STORY FRAME
384 square feet
D
1S FR ONE STORY FRAME
28 square feet
E
OFP OPEN FRAME PORCH
128 square feet
Parcel Images
Please note:
this tab is for informational purposes only and may not show all delinquencies, see the Taxes tab for more accurate delinquent taxes due.