Elected Officials
Courts
Departments
Initiatives
Open Government
About
Login / Register
Home
/
Property & Tax Records
/
Property Records
/
Property & Tax Search
/
Parcel Profile
/
Print View
Search for Another Parcel
Parcel Profile
Historical Card
Sketches
Photos
Tax Map
Taxes
Print View
Print This Page
Address: 238 W FREDERICK ST
Parcel: 07023043001000
Parcel Profile
Address
238 | W | FREDERICK | ST
Street Status
PAVED
School District
CORRY AREA SCHOOL
Acreage
0.2189
Classification
R
Land Use Code
SINGLE FAMILY
Legal Description
238 W FREDERICK 64X148.58
Square Feet
1008
Topo
LEVEL | ROLLING
Utility
ALL PUBLIC
Zoning
Please contact your municipal zoning officer
Deed Book
2010
Deed Page
003797
2025 Tax Values
Land Value / Taxable
13,900 / 13,900.00
Building Value / Taxable
29,900 / 29,900.00
Total Value / Taxable
43,800 / 43,800.00
Clean & Green
Inactive
Homestead Status
Active
Farmstead Status
Inactive
Lerta Amount
0
Lerta Expiration Year
0
Residential Data
Card 1
Style
CONVENTIONAL
Basement
FULL
Year Built
1900
Exterior Wall
COMPOSITION
Total Living Area
1008
Full Baths
1
Half Baths
0
Fuel Type
GAS
Heating
CENTRAL
Heating System
FORCED AIR
Stories
1.5
Total Bedrooms
3
Total Family Rooms
0
Total Rooms
7
Fireplaces
0
Other Buildings & Yards
No OBY Data Found
Sales History
Sale Date
Type
Price
Book / Page
Other Info
2/22/2010
LAND & BUILDING
23700
2010 / 003797
WARRANTY/SURVIVORSHIP DEED
9/18/2002
LAND & BUILDING
0
0921 / 1153
DEED
7/29/1992
0
0223 / 1505
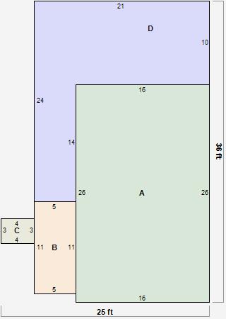
Parcel Sketches
Residential Card 1
A
MAIN
416 square feet
B
OFP OPEN FRAME PORCH
55 square feet
C
MA STOOP/TERR MAS STOOP
12 square feet
D
UNFIN BSMT BASEMENT UNFINISHED 1S FR ONE STORY FRAME
280 square feet
Parcel Images