Elected Officials
Courts
Departments
Initiatives
Open Government
About
Login / Register
Home
/
Property & Tax Records
/
Property Records
/
Property & Tax Search
/
Parcel Profile
/
Print View
Search for Another Parcel
Parcel Profile
Historical Card
Sketches
Photos
Tax Map
Taxes
Print View
Print This Page
Address: 220 W FREDERICK ST
Parcel: 07023043001300
Parcel Profile
Address
220 | W | FREDERICK | ST
Street Status
PAVED | SIDEWALK
School District
CORRY AREA SCHOOL
Acreage
0.2157
Classification
R
Land Use Code
SINGLE FAMILY
Legal Description
220 W FREDERICK 72 X 74 IRR
Square Feet
1159
Topo
LEVEL
Utility
ALL PUBLIC
Zoning
Please contact your municipal zoning officer
Deed Book
0869
Deed Page
0641
2026 Tax Values
Land Value / Taxable
13,800 / 13,800.00
Building Value / Taxable
32,520 / 32,520.00
Total Value / Taxable
46,320 / 46,320.00
Clean & Green
Inactive
Homestead Status
Active
Farmstead Status
Inactive
Lerta Amount
0
Lerta Expiration Year
0
Residential Data
Card 1
Style
BUNGALOW
Basement
FULL
Year Built
1860
Exterior Wall
ALUMINUM/VINYL
Total Living Area
1159
Full Baths
1
Half Baths
0
Fuel Type
GAS
Heating
CENTRAL
Heating System
NONE
Stories
1.0
Total Bedrooms
2
Total Family Rooms
0
Total Rooms
5
Fireplaces
0
Other Buildings & Yards
No OBY Data Found
Sales History
Sale Date
Type
Price
Book / Page
Other Info
4/9/2002
LAND & BUILDING
0
869 / 1789
4/9/2002
0
0869 / 0641
9/5/1996
LAND & BUILDING
3500
465 / 1789
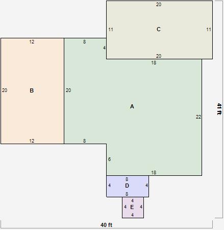
Parcel Sketches
Residential Card 1
A
MAIN
556 square feet
B
1S FR ONE STORY FRAME
240 square feet
C
FR GR FRAME GARAGE 1S FR ONE STORY FRAME
220 square feet
D
1S FR ONE STORY FRAME
32 square feet
E
MA STOOP/TERR MAS STOOP
16 square feet
Parcel Images
Please note:
this tab is for informational purposes only and may not show all delinquencies, see the Taxes tab for more accurate delinquent taxes due.