Elected Officials
Courts
Departments
Initiatives
Open Government
About
Login / Register
Home
/
Property & Tax Records
/
Property Records
/
Property & Tax Search
/
Parcel Profile
/
Print View
Search for Another Parcel
Parcel Profile
Historical Card
Sketches
Photos
Tax Map
Taxes
Print View
Print This Page
Address: 517 MEAD AVE
Parcel: 07023044001000
Parcel Profile
Address
517 | MEAD | AVE
Street Status
PAVED | SIDEWALK
School District
CORRY AREA SCHOOL
Acreage
0.1359
Classification
R
Land Use Code
SINGLE FAMILY
Legal Description
517 MEAD AVE 40X152.5
Square Feet
1217
Topo
LEVEL | ROLLING
Utility
ALL PUBLIC
Zoning
Please contact your municipal zoning officer
Deed Book
1601
Deed Page
0052
2026 Tax Values
Land Value / Taxable
12,900 / 12,900.00
Building Value / Taxable
29,580 / 29,580.00
Total Value / Taxable
42,480 / 42,480.00
Clean & Green
Inactive
Homestead Status
Inactive
Farmstead Status
Inactive
Lerta Amount
0
Lerta Expiration Year
0
Residential Data
Card 1
Style
BUNGALOW
Basement
FULL
Year Built
1870
Exterior Wall
ALUMINUM/VINYL
Total Living Area
1217
Full Baths
1
Half Baths
0
Fuel Type
GAS
Heating
CENTRAL
Heating System
FORCED AIR
Stories
1.0
Total Bedrooms
2
Total Family Rooms
0
Total Rooms
6
Fireplaces
0
Other Buildings & Yards
Description
Built
Width
Length
Area
FRAME UTILITY SHED
2001
10
20
200
Sales History
Sale Date
Type
Price
Book / Page
Other Info
10/10/1985
0
1601 / 0052
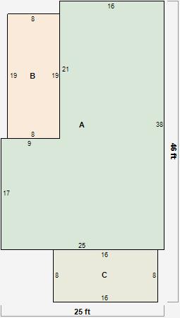
Parcel Sketches
Residential Card 1
A
MAIN
761 square feet
B
1S FR ONE STORY FRAME
152 square feet
C
EFP ENCL FRAME PORCH
128 square feet
Parcel Images