Elected Officials
Courts
Departments
Initiatives
Open Government
About
Login / Register
Home
/
Property & Tax Records
/
Property Records
/
Property & Tax Search
/
Parcel Profile
/
Print View
Search for Another Parcel
Parcel Profile
Historical Card
Sketches
Photos
Tax Map
Taxes
Print View
Print This Page
Address: 315 MARION ST
Parcel: 07023064000900
Parcel Profile
Address
315 | MARION | ST
Street Status
PAVED
School District
CORRY AREA SCHOOL
Acreage
0.2296
Classification
R
Land Use Code
TWO FAMILY
Legal Description
315 MARION ST 50X200
Square Feet
1995
Topo
LEVEL | ROLLING
Utility
ALL PUBLIC
Zoning
Please contact your municipal zoning officer
Deed Book
2025
Deed Page
003228
2025 Tax Values
Land Value / Taxable
14,000 / 14,000.00
Building Value / Taxable
35,310 / 35,310.00
Total Value / Taxable
49,310 / 49,310.00
Clean & Green
Inactive
Homestead Status
Inactive
Farmstead Status
Inactive
Lerta Amount
0
Lerta Expiration Year
0
Residential Data
Card 1
Style
CAPE
Basement
PART
Year Built
1935
Exterior Wall
COMPOSITION
Total Living Area
1995
Full Baths
2
Half Baths
0
Fuel Type
GAS
Heating
CENTRAL
Heating System
FORCED AIR
Stories
1.5
Total Bedrooms
5
Total Family Rooms
0
Total Rooms
10
Fireplaces
0
Other Buildings & Yards
Description
Built
Width
Length
Area
FRAME OR CB DETACHED GARAGE
1961
16
20
320
FRAME UTILITY SHED
1970
16
10
160
Sales History
Sale Date
Type
Price
Book / Page
Other Info
3/3/2025
LAND & BUILDING
0
2025 / 003228
DEED
9/18/1995
LAND
9000
0406 / 0417
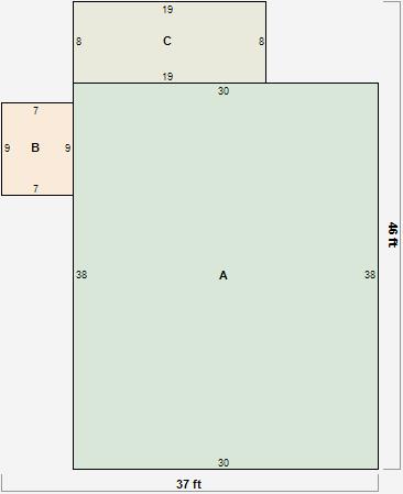
Parcel Sketches
Residential Card 1
A
MAIN
1140 square feet
B
MA_PT CONC/MAS PATIO
63 square feet
C
EFP ENCL FRAME PORCH
152 square feet
Parcel Images