Elected Officials
Courts
Departments
Initiatives
Open Government
About
Login / Register
Home
/
Property & Tax Records
/
Property Records
/
Property & Tax Search
/
Parcel Profile
/
Print View
Search for Another Parcel
Parcel Profile
Historical Card
Sketches
Photos
Tax Map
Taxes
Print View
Print This Page
Address: 245 FRANKLIN ST
Parcel: 07023079000300
Parcel Profile
Address
245 | FRANKLIN | ST
Street Status
PAVED | SIDEWALK
School District
CORRY AREA SCHOOL
Acreage
0.2292
Classification
R
Land Use Code
SINGLE FAMILY
Legal Description
245 FRANKLIN ST 62.75 X 161 IRR
Square Feet
1738
Topo
LEVEL
Utility
ALL PUBLIC
Zoning
Please contact your municipal zoning officer
Deed Book
2019
Deed Page
020953
2026 Tax Values
Land Value / Taxable
14,000 / 14,000.00
Building Value / Taxable
20,170 / 20,170.00
Total Value / Taxable
34,170 / 34,170.00
Clean & Green
Inactive
Homestead Status
Inactive
Farmstead Status
Inactive
Lerta Amount
0
Lerta Expiration Year
0
Residential Data
Card 1
Style
OLD STYLE
Basement
FULL
Year Built
1900
Exterior Wall
ALUMINUM/VINYL
Total Living Area
1738
Full Baths
1
Half Baths
1
Fuel Type
GAS
Heating
CENTRAL
Heating System
FORCED AIR
Stories
2.0
Total Bedrooms
3
Total Family Rooms
0
Total Rooms
6
Fireplaces
0
Other Buildings & Yards
No OBY Data Found
Sales History
Sale Date
Type
Price
Book / Page
Other Info
10/14/2019
LAND & BUILDING
38200
2019 / 020953
SPECIAL WARRANTY DEED
8/25/2005
LAND & BUILDING
24000
1263 / 2163
WARRANTY/SURVIVORSHIP DEED
7/13/2005
LAND & BUILDING
18000
1250 / 2339
WARRANTY/SURVIVORSHIP DEED
6/20/1996
0
0446 / 0951
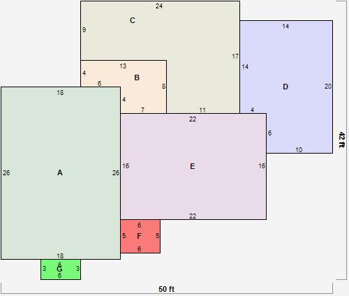
Parcel Sketches
Residential Card 1
A
MAIN
468 square feet
B
1S FR ONE STORY FRAME
80 square feet
C
OFP OPEN FRAME PORCH
304 square feet
D
FR GR FRAME GARAGE
256 square feet
E
UNFIN BSMT BASEMENT UNFINISHED 1S FR ONE STORY FRAME AT UN ATTIC-UNFINISHED
352 square feet
F
EFP ENCL FRAME PORCH
30 square feet
G
FRBAY FRAME BAY
18 square feet
Parcel Images
Please note:
this tab is for informational purposes only and may not show all delinquencies, see the Taxes tab for more accurate delinquent taxes due.