Elected Officials
Courts
Departments
Initiatives
Open Government
About
Login / Register
Home
/
Property & Tax Records
/
Property Records
/
Property & Tax Search
/
Parcel Profile
/
Print View
Search for Another Parcel
Parcel Profile
Historical Card
Sketches
Photos
Tax Map
Taxes
Print View
Print This Page
Address: 120 W PARK PL
Parcel: 07023090000100
Parcel Profile
Address
120 | W | PARK | PL
Street Status
PAVED | SIDEWALK
School District
CORRY AREA SCHOOL
Acreage
0.2652
Classification
R
Land Use Code
SINGLE FAMILY
Legal Description
120 W PARK PL TR 51 105 X 110.5
Square Feet
1560
Topo
LEVEL
Utility
ALL PUBLIC
Zoning
Please contact your municipal zoning officer
Deed Book
1232
Deed Page
0331
2026 Tax Values
Land Value / Taxable
14,400 / 14,400.00
Building Value / Taxable
55,080 / 55,080.00
Total Value / Taxable
69,480 / 69,480.00
Clean & Green
Inactive
Homestead Status
Active
Farmstead Status
Inactive
Lerta Amount
0
Lerta Expiration Year
0
Residential Data
Card 1
Style
OLD STYLE
Basement
PART
Year Built
1908
Exterior Wall
ALUMINUM/VINYL
Total Living Area
1560
Full Baths
2
Half Baths
0
Fuel Type
GAS
Heating
CENTRAL
Heating System
HOT WATER
Stories
2.0
Total Bedrooms
3
Total Family Rooms
1
Total Rooms
6
Fireplaces
1
Other Buildings & Yards
Description
Built
Width
Length
Area
FRAME OR CB DETACHED GARAGE
1960
20
22
440
Sales History
Sale Date
Type
Price
Book / Page
Other Info
5/9/2005
LAND & BUILDING
0
1232 / 0331
QUIT CLAIM DEED
10/2/1990
0
0139 / 0276
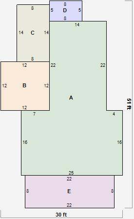
Parcel Sketches
Residential Card 1
A
MAIN
708 square feet
B
UNFIN BSMT BASEMENT UNFINISHED 1S FR ONE STORY FRAME
144 square feet
C
MA_PT CONC/MAS PATIO
112 square feet
D
EFP ENCL FRAME PORCH
40 square feet
E
EFP ENCL FRAME PORCH
176 square feet
Parcel Images
Please note:
this tab is for informational purposes only and may not show all delinquencies, see the Taxes tab for more accurate delinquent taxes due.