Elected Officials
Courts
Departments
Initiatives
Open Government
About
Login / Register
Home
/
Property & Tax Records
/
Property Records
/
Property & Tax Search
/
Parcel Profile
/
Print View
Search for Another Parcel
Parcel Profile
Historical Card
Sketches
Photos
Tax Map
Taxes
Print View
Print This Page
Address: 515 GRAND ST
Parcel: 07025065001400
Parcel Profile
Address
515 | GRAND | ST
Street Status
PAVED
School District
CORRY AREA SCHOOL
Acreage
0.1856
Classification
R
Land Use Code
SINGLE FAMILY
Legal Description
515 GRAND ST 82.5X97.98 IRR
Square Feet
1540
Topo
LEVEL
Utility
ALL PUBLIC
Zoning
Please contact your municipal zoning officer
Deed Book
2024
Deed Page
000968
2025 Tax Values
Land Value / Taxable
13,500 / 13,500.00
Building Value / Taxable
36,190 / 36,190.00
Total Value / Taxable
49,690 / 49,690.00
Clean & Green
Inactive
Homestead Status
Active
Farmstead Status
Inactive
Lerta Amount
0
Lerta Expiration Year
0
Residential Data
Card 1
Style
OLD STYLE
Basement
FULL
Year Built
1900
Exterior Wall
FRAME
Total Living Area
1540
Full Baths
1
Half Baths
0
Fuel Type
GAS
Heating
CENTRAL
Heating System
FORCED AIR
Stories
2.0
Total Bedrooms
3
Total Family Rooms
0
Total Rooms
8
Fireplaces
0
Other Buildings & Yards
Description
Built
Width
Length
Area
FRAME OR CB DETACHED GARAGE
1940
22
30
660
Sales History
Sale Date
Type
Price
Book / Page
Other Info
1/19/2024
LAND & BUILDING
157000
2024 / 000968
DEED
2/24/2023
LAND & BUILDING
22000
2023 / 002883
DEED
3/13/1989
0
0080 / 0308
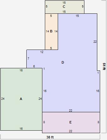
Parcel Sketches
Residential Card 1
A
MAIN
384 square feet
B
EFP ENCL FRAME PORCH
70 square feet
C
MA_PT CONC/MAS PATIO
75 square feet
D
UNFIN BSMT BASEMENT UNFINISHED 1S FR ONE STORY FRAME
772 square feet
E
OFP OPEN FRAME PORCH
176 square feet
Parcel Images