Elected Officials
Courts
Departments
Initiatives
Open Government
About
Login / Register
Home
/
Property & Tax Records
/
Property Records
/
Property & Tax Search
/
Parcel Profile
/
Print View
Search for Another Parcel
Parcel Profile
Historical Card
Sketches
Photos
Tax Map
Taxes
Print View
Print This Page
Address: 525 GRAND ST
Parcel: 07025065001500
Parcel Profile
Address
525 | GRAND | ST
Street Status
PAVED
School District
CORRY AREA SCHOOL
Acreage
0.4578
Classification
R
Land Use Code
SINGLE FAMILY
Legal Description
525 GRAND ST TR 51 83.44 X 239
Square Feet
1396
Topo
LEVEL | ROLLING
Utility
ALL PUBLIC
Zoning
Please contact your municipal zoning officer
Deed Book
2016
Deed Page
025347
2026 Tax Values
Land Value / Taxable
16,800 / 16,800.00
Building Value / Taxable
54,800 / 54,800.00
Total Value / Taxable
71,600 / 71,600.00
Clean & Green
Inactive
Homestead Status
Inactive
Farmstead Status
Inactive
Lerta Amount
0
Lerta Expiration Year
0
Residential Data
Card 1
Style
OLD STYLE
Basement
PART
Year Built
1900
Exterior Wall
FRAME
Total Living Area
1396
Full Baths
1
Half Baths
0
Fuel Type
GAS
Heating
CENTRAL
Heating System
FORCED AIR
Stories
2.0
Total Bedrooms
3
Total Family Rooms
0
Total Rooms
6
Fireplaces
1
Other Buildings & Yards
Description
Built
Width
Length
Area
FRAME OR CB DETACHED GARAGE
1900
12
20
240
Sales History
Sale Date
Type
Price
Book / Page
Other Info
11/21/2016
LAND & BUILDING
51500
2016 / 025347
DEED
5/30/2003
LAND & BUILDING
27000
1017 / 1710
FIDUCIARY DEED
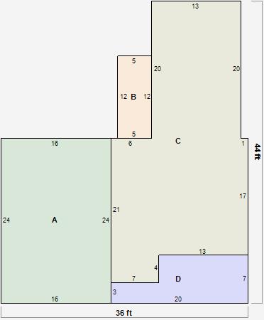
Parcel Sketches
Residential Card 1
A
MAIN
384 square feet
B
EFP ENCL FRAME PORCH
60 square feet
C
UNFIN BSMT BASEMENT UNFINISHED 1S FR ONE STORY FRAME
628 square feet
D
OFP OPEN FRAME PORCH
112 square feet
Parcel Images
Please note:
this tab is for informational purposes only and may not show all delinquencies, see the Taxes tab for more accurate delinquent taxes due.