Elected Officials
Courts
Departments
Initiatives
Open Government
About
Login / Register
Home
/
Property & Tax Records
/
Property Records
/
Property & Tax Search
/
Parcel Profile
/
Print View
Search for Another Parcel
Parcel Profile
Historical Card
Sketches
Photos
Tax Map
Taxes
Print View
Print This Page
Address: 218 DUANE ST
Parcel: 07026073000300
Parcel Profile
Address
218 | DUANE | ST
Street Status
UNPAVED
School District
CORRY AREA SCHOOL
Acreage
0.2149
Classification
R
Land Use Code
SINGLE FAMILY
Legal Description
218 DUANE ST TR 51 60 X 155 IRR
Square Feet
1824
Topo
LEVEL
Utility
ALL PUBLIC
Zoning
Please contact your municipal zoning officer
Deed Book
2019
Deed Page
004628
2026 Tax Values
Land Value / Taxable
13,800 / 13,800.00
Building Value / Taxable
53,900 / 53,900.00
Total Value / Taxable
67,700 / 67,700.00
Clean & Green
Inactive
Homestead Status
Inactive
Farmstead Status
Inactive
Lerta Amount
0
Lerta Expiration Year
0
Residential Data
Card 1
Style
OLD STYLE
Basement
FULL
Year Built
1900
Exterior Wall
ALUMINUM/VINYL
Total Living Area
1824
Full Baths
1
Half Baths
0
Fuel Type
COAL/WOOD
Heating
CENTRAL
Heating System
FORCED AIR
Stories
2.0
Total Bedrooms
6
Total Family Rooms
0
Total Rooms
10
Fireplaces
0
Other Buildings & Yards
No OBY Data Found
Sales History
Sale Date
Type
Price
Book / Page
Other Info
3/18/2019
LAND & BUILDING
75000
2019 / 004628
WARRANTY/SURVIVORSHIP DEED
5/16/2011
LAND & BUILDING
13500
2011 / 010917
DEED
3/1/2007
LAND & BUILDING
13500
1397 / 2246
DEED
4/4/2006
LAND & BUILDING
3098
1317 / 0925
SHERIFF'S DED
6/8/1994
0
0338 / 2265
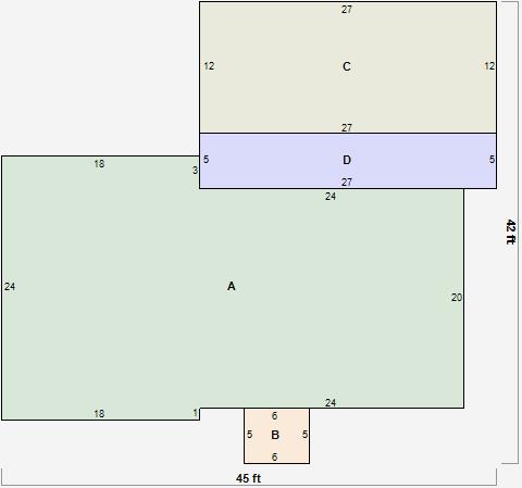
Parcel Sketches
Residential Card 1
A
MAIN
912 square feet
B
OFP OPEN FRAME PORCH
30 square feet
C
FR GR FRAME GARAGE
324 square feet
D
EFP ENCL FRAME PORCH
135 square feet
Parcel Images
Please note:
this tab is for informational purposes only and may not show all delinquencies, see the Taxes tab for more accurate delinquent taxes due.