Elected Officials
Courts
Departments
Initiatives
Open Government
About
Login / Register
Home
/
Property & Tax Records
/
Property Records
/
Property & Tax Search
/
Parcel Profile
/
Print View
Search for Another Parcel
Parcel Profile
Historical Card
Sketches
Photos
Tax Map
Taxes
Print View
Print This Page
Address: 231 MEAD AVE
Parcel: 07026073000500
Parcel Profile
Address
231 | MEAD | AVE
Street Status
PAVED
School District
CORRY AREA SCHOOL
Acreage
0.1795
Classification
R
Land Use Code
SINGLE FAMILY
Legal Description
231 MEAD AVE TR 51 46X170 IRR
Square Feet
1500
Topo
LEVEL
Utility
ALL PUBLIC
Zoning
Please contact your municipal zoning officer
Deed Book
2022
Deed Page
019752
2026 Tax Values
Land Value / Taxable
13,400 / 13,400.00
Building Value / Taxable
56,470 / 56,470.00
Total Value / Taxable
69,870 / 69,870.00
Clean & Green
Inactive
Homestead Status
Active
Farmstead Status
Inactive
Lerta Amount
0
Lerta Expiration Year
0
Residential Data
Card 1
Style
OLD STYLE
Basement
FULL
Year Built
1920
Exterior Wall
FRAME
Total Living Area
1500
Full Baths
1
Half Baths
1
Fuel Type
GAS
Heating
CENTRAL
Heating System
FORCED AIR
Stories
2.0
Total Bedrooms
3
Total Family Rooms
0
Total Rooms
6
Fireplaces
0
Other Buildings & Yards
Description
Built
Width
Length
Area
FRAME UTILITY SHED
1980
10
16
160
Sales History
Sale Date
Type
Price
Book / Page
Other Info
9/8/2022
LAND & BUILDING
120000
2022 / 019752
SPECIAL WARRANTY DEED
3/9/1965
0
0913 / 0143
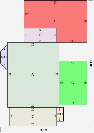
Parcel Sketches
Residential Card 1
A
MAIN
616 square feet
B
MA STOOP/TERR MAS STOOP
18 square feet
C
1S FR ONE STORY FRAME
160 square feet
D
FRBAY FRAME BAY
24 square feet
E
1S FR ONE STORY FRAME
84 square feet
F
WDDCK WOOD DECKS
402 square feet
G
FR GR FRAME GARAGE
228 square feet
Parcel Images
Please note:
this tab is for informational purposes only and may not show all delinquencies, see the Taxes tab for more accurate delinquent taxes due.