Elected Officials
Courts
Departments
Initiatives
Open Government
About
Login / Register
Home
/
Property & Tax Records
/
Property Records
/
Property & Tax Search
/
Parcel Profile
/
Print View
Search for Another Parcel
Parcel Profile
Historical Card
Sketches
Photos
Tax Map
Taxes
Print View
Print This Page
Address: 221 MEAD AVE
Parcel: 07026073000700
Parcel Profile
Address
221 | MEAD | AVE
Street Status
PAVED
School District
CORRY AREA SCHOOL
Acreage
0.2380
Classification
R
Land Use Code
SINGLE FAMILY
Legal Description
221 MEAD AVE TR 51 58X198 IRR
Square Feet
2026
Topo
LEVEL
Utility
ALL PUBLIC
Zoning
Please contact your municipal zoning officer
Deed Book
2026
Deed Page
003461
2026 Tax Values
Land Value / Taxable
14,100 / 14,100.00
Building Value / Taxable
23,900 / 23,900.00
Total Value / Taxable
38,000 / 38,000.00
Clean & Green
Inactive
Homestead Status
Inactive
Farmstead Status
Inactive
Lerta Amount
0
Lerta Expiration Year
0
Residential Data
Card 1
Style
OLD STYLE
Basement
FULL
Year Built
1900
Exterior Wall
FRAME
Total Living Area
2026
Full Baths
2
Half Baths
0
Fuel Type
GAS
Heating
CENTRAL
Heating System
FORCED AIR
Stories
2.0
Total Bedrooms
4
Total Family Rooms
0
Total Rooms
10
Fireplaces
0
Other Buildings & Yards
No OBY Data Found
Sales History
Sale Date
Type
Price
Book / Page
Other Info
3/4/2026
LAND & BUILDING
0
2026 / 003461
SPECIAL WARRANTY DEED
12/10/2025
LAND & BUILDING
14000
2025 / 021987
SPECIAL WARRANTY DEED
8/22/1990
0
0134 / 0773
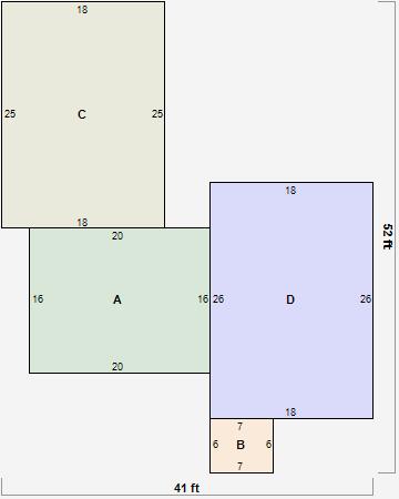
Parcel Sketches
Residential Card 1
A
MAIN
320 square feet
B
OFP OPEN FRAME PORCH
42 square feet
C
1S FR ONE STORY FRAME
450 square feet
D
1S FR ONE STORY FRAME 1S FR ONE STORY FRAME
468 square feet
Parcel Images
Please note:
this tab is for informational purposes only and may not show all delinquencies, see the Taxes tab for more accurate delinquent taxes due.