Elected Officials
Courts
Departments
Initiatives
Open Government
About
Login / Register
Home
/
Property & Tax Records
/
Property Records
/
Property & Tax Search
/
Parcel Profile
/
Print View
Search for Another Parcel
Parcel Profile
Historical Card
Sketches
Photos
Tax Map
Taxes
Print View
Print This Page
Address: 325 W WASHINGTON ST
Parcel: 07026073001200
Parcel Profile
Address
325 | W | WASHINGTON | ST
Street Status
PAVED
School District
CORRY AREA SCHOOL
Acreage
0.3966
Classification
R
Land Use Code
TWO FAMILY
Legal Description
325 W WASHINGTON ST 124.93 X 138.27 IR
Square Feet
2124
Topo
LEVEL
Utility
ALL PUBLIC
Zoning
Please contact your municipal zoning officer
Deed Book
2022
Deed Page
023396
2026 Tax Values
Land Value / Taxable
16,000 / 16,000.00
Building Value / Taxable
42,600 / 42,600.00
Total Value / Taxable
58,600 / 58,600.00
Clean & Green
Inactive
Homestead Status
Active
Farmstead Status
Inactive
Lerta Amount
0
Lerta Expiration Year
0
Residential Data
Card 1
Style
OLD STYLE
Basement
FULL
Year Built
1900
Exterior Wall
ALUMINUM/VINYL
Total Living Area
2124
Full Baths
2
Half Baths
0
Fuel Type
GAS
Heating
CENTRAL
Heating System
FORCED AIR
Stories
2.0
Total Bedrooms
5
Total Family Rooms
0
Total Rooms
10
Fireplaces
0
Other Buildings & Yards
Description
Built
Width
Length
Area
FRAME UTILITY SHED
2005
10
20
200
Sales History
Sale Date
Type
Price
Book / Page
Other Info
10/31/2022
LAND & BUILDING
60000
2022 / 023396
SPECIAL WARRANTY DEED
10/30/1998
LAND & BUILDING
60000
0598 / 1446
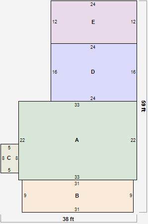
Parcel Sketches
Residential Card 1
A
MAIN
726 square feet
B
OFP OPEN FRAME PORCH
279 square feet
C
OFP OPEN FRAME PORCH
40 square feet
D
1S FR ONE STORY FRAME
384 square feet
E
1S FR ONE STORY FRAME
288 square feet
Parcel Images
Please note:
this tab is for informational purposes only and may not show all delinquencies, see the Taxes tab for more accurate delinquent taxes due.