Elected Officials
Courts
Departments
Initiatives
Open Government
About
Login / Register
Home
/
Property & Tax Records
/
Property Records
/
Property & Tax Search
/
Parcel Profile
/
Print View
Search for Another Parcel
Parcel Profile
Historical Card
Sketches
Photos
Tax Map
Taxes
Print View
Print This Page
Address: 129 MEAD AVE
Parcel: 07026074000800
Parcel Profile
Address
129 | MEAD | AVE
Street Status
PAVED | SIDEWALK
School District
CORRY AREA SCHOOL
Acreage
0.1350
Classification
R
Land Use Code
TWO FAMILY
Legal Description
129 - 129 1/2 MEAD AVE TR 51 64 X 87 IRR
Square Feet
2363
Topo
LEVEL
Utility
ALL PUBLIC
Zoning
Please contact your municipal zoning officer
Deed Book
0982
Deed Page
0770
2026 Tax Values
Land Value / Taxable
11,600 / 11,600.00
Building Value / Taxable
56,400 / 56,400.00
Total Value / Taxable
68,000 / 68,000.00
Clean & Green
Inactive
Homestead Status
Inactive
Farmstead Status
Inactive
Lerta Amount
0
Lerta Expiration Year
0
Residential Data
Card 1
Style
OLD STYLE
Basement
NONE
Year Built
1900
Exterior Wall
ALUMINUM/VINYL
Total Living Area
2363
Full Baths
2
Half Baths
0
Fuel Type
GAS
Heating
CENTRAL
Heating System
FORCED AIR
Stories
2.0
Total Bedrooms
5
Total Family Rooms
0
Total Rooms
13
Fireplaces
0
Other Buildings & Yards
No OBY Data Found
Sales History
Sale Date
Type
Price
Book / Page
Other Info
3/4/2003
LAND & BUILDING
0
0982 / 0770
AFFIDAVIT
10/7/1976
0
1239 / 0427
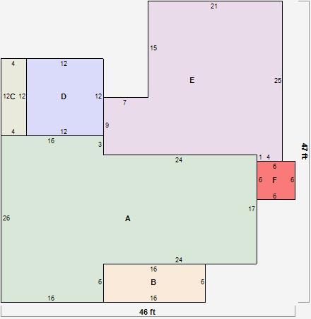
Parcel Sketches
Residential Card 1
A
MAIN
824 square feet
B
OFP OPEN FRAME PORCH
96 square feet
C
OFP OPEN FRAME PORCH
48 square feet
D
1S FR ONE STORY FRAME
144 square feet
E
1S FR ONE STORY FRAME
571 square feet
F
EFP ENCL FRAME PORCH
36 square feet
Parcel Images