Elected Officials
Courts
Departments
Initiatives
Open Government
About
Login / Register
Home
/
Property & Tax Records
/
Property Records
/
Property & Tax Search
/
Parcel Profile
/
Print View
Search for Another Parcel
Parcel Profile
Historical Card
Sketches
Photos
Tax Map
Taxes
Print View
Print This Page
Address: 277 W WASHINGTON ST
Parcel: 07026078001400
Parcel Profile
Address
277 | W | WASHINGTON | ST
Street Status
PAVED | SIDEWALK
School District
CORRY AREA SCHOOL
Acreage
0.1455
Classification
R
Land Use Code
SINGLE FAMILY
Legal Description
277 W WASHINGTON ST 66 X 88.5 IRR
Square Feet
1860
Topo
LEVEL
Utility
ALL PUBLIC
Zoning
Please contact your municipal zoning officer
Deed Book
626
Deed Page
1838
2026 Tax Values
Land Value / Taxable
13,000 / 13,000.00
Building Value / Taxable
65,600 / 65,600.00
Total Value / Taxable
78,600 / 78,600.00
Clean & Green
Inactive
Homestead Status
Inactive
Farmstead Status
Inactive
Lerta Amount
0
Lerta Expiration Year
0
Residential Data
Card 1
Style
CONVENTIONAL
Basement
FULL
Year Built
1935
Exterior Wall
BRICK
Total Living Area
1860
Full Baths
1
Half Baths
0
Fuel Type
GAS
Heating
CENTRAL A/C
Heating System
FORCED AIR
Stories
2.0
Total Bedrooms
3
Total Family Rooms
0
Total Rooms
6
Fireplaces
0
Other Buildings & Yards
Description
Built
Width
Length
Area
FRAME OR CB DETACHED GARAGE
1935
18
20
360
Sales History
Sale Date
Type
Price
Book / Page
Other Info
3/31/1999
LAND & BUILDING
60000
0626 / 1838
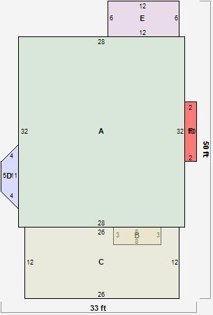
Parcel Sketches
Residential Card 1
A
MAIN
896 square feet
B
1SMAS MASONRY
24 square feet
C
OFP OPEN FRAME PORCH
312 square feet
D
FRBAY FRAME BAY
24 square feet
E
EFP ENCL FRAME PORCH
72 square feet
F
FROVR FRAME OVERHANG
20 square feet
Parcel Images
Please note:
this tab is for informational purposes only and may not show all delinquencies, see the Taxes tab for more accurate delinquent taxes due.