Elected Officials
Courts
Departments
Initiatives
Open Government
About
Login / Register
Home
/
Property & Tax Records
/
Property Records
/
Property & Tax Search
/
Parcel Profile
/
Print View
Search for Another Parcel
Parcel Profile
Historical Card
Sketches
Photos
Tax Map
Taxes
Print View
Print This Page
Address: 202 FRANKLIN ST
Parcel: 07026081000200
Parcel Profile
Address
202 | FRANKLIN | ST
Street Status
PAVED | SIDEWALK
School District
CORRY AREA SCHOOL
Acreage
0.1636
Classification
R
Land Use Code
SINGLE FAMILY
Legal Description
202 FRANKLIN ST 57X125
Square Feet
812
Topo
LEVEL
Utility
ALL PUBLIC
Zoning
Please contact your municipal zoning officer
Deed Book
2013
Deed Page
001805
2025 Tax Values
Land Value / Taxable
13,200 / 13,200.00
Building Value / Taxable
15,800 / 15,800.00
Total Value / Taxable
29,000 / 29,000.00
Clean & Green
Inactive
Homestead Status
Inactive
Farmstead Status
Inactive
Lerta Amount
0
Lerta Expiration Year
0
Residential Data
Card 1
Style
BUNGALOW
Basement
FULL
Year Built
1930
Exterior Wall
ALUMINUM/VINYL
Total Living Area
812
Full Baths
1
Half Baths
0
Fuel Type
GAS
Heating
CENTRAL
Heating System
FORCED AIR
Stories
1.0
Total Bedrooms
2
Total Family Rooms
0
Total Rooms
4
Fireplaces
0
Other Buildings & Yards
No OBY Data Found
Sales History
Sale Date
Type
Price
Book / Page
Other Info
1/23/2013
LAND & BUILDING
31000
2013 / 001805
DEED
9/7/2012
LAND & BUILDING
21150
2012 / 024553
DEED
5/22/2012
LAND & BUILDING
0
2012 / 013052
DEED
3/20/2012
LAND & BUILDING
1419
2012 / 007016
SHERIFF'S DED
9/12/2002
LAND & BUILDING
50000
919 / 1167
WARRANTY/SURVIVORSHIP DEED
2/19/1999
LAND & BUILDING
25500
618 / 2092
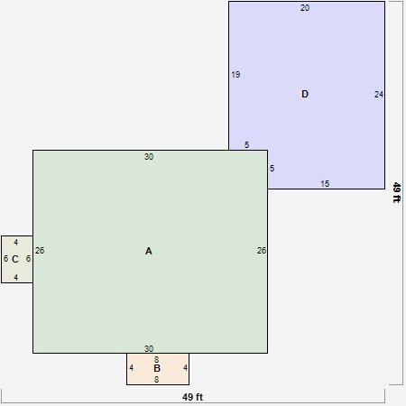
Parcel Sketches
Residential Card 1
A
MAIN
780 square feet
B
1S FR ONE STORY FRAME
32 square feet
C
EFP ENCL FRAME PORCH
24 square feet
D
FR GR FRAME GARAGE
455 square feet
Parcel Images