Elected Officials
Courts
Departments
Initiatives
Open Government
About
Login / Register
Home
/
Property & Tax Records
/
Property Records
/
Property & Tax Search
/
Parcel Profile
/
Print View
Search for Another Parcel
Parcel Profile
Historical Card
Sketches
Photos
Tax Map
Taxes
Print View
Print This Page
Address: 124 FRANKLIN ST
Parcel: 07026081000400
Parcel Profile
Address
124 | FRANKLIN | ST
Street Status
PAVED | SIDEWALK
School District
CORRY AREA SCHOOL
Acreage
0.1950
Classification
R
Land Use Code
SINGLE FAMILY
Legal Description
124 FRANKLIN ST 48.53X178.33
Square Feet
1992
Topo
LEVEL
Utility
ALL PUBLIC
Zoning
Please contact your municipal zoning officer
Deed Book
0794
Deed Page
0008
2026 Tax Values
Land Value / Taxable
13,600 / 13,600.00
Building Value / Taxable
37,550 / 37,550.00
Total Value / Taxable
51,150 / 51,150.00
Clean & Green
Inactive
Homestead Status
Active
Farmstead Status
Inactive
Lerta Amount
0
Lerta Expiration Year
0
Residential Data
Card 1
Style
OLD STYLE
Basement
FULL
Year Built
1904
Exterior Wall
BLOCK
Total Living Area
1992
Full Baths
2
Half Baths
1
Fuel Type
GAS
Heating
CENTRAL
Heating System
HOT WATER
Stories
2.0
Total Bedrooms
3
Total Family Rooms
0
Total Rooms
6
Fireplaces
1
Other Buildings & Yards
No OBY Data Found
Sales History
Sale Date
Type
Price
Book / Page
Other Info
7/20/2001
0
0794 / 0008
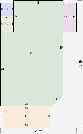
Parcel Sketches
Residential Card 1
A
MAIN
892 square feet
B
EFP ENCL FRAME PORCH
144 square feet
C
1S FR ONE STORY FRAME
30 square feet
D
EFP ENCL FRAME PORCH
25 square feet
E
OFP OPEN FRAME PORCH
55 square feet
Parcel Images
Please note:
this tab is for informational purposes only and may not show all delinquencies, see the Taxes tab for more accurate delinquent taxes due.