Elected Officials
Courts
Departments
Initiatives
Open Government
About
Login / Register
Home
/
Property & Tax Records
/
Property Records
/
Property & Tax Search
/
Parcel Profile
/
Print View
Search for Another Parcel
Parcel Profile
Historical Card
Sketches
Photos
Tax Map
Taxes
Print View
Print This Page
Address: 161 MOTT ST
Parcel: 07026081000700
Parcel Profile
Address
161 | MOTT | ST
Street Status
PAVED | SIDEWALK
School District
CORRY AREA SCHOOL
Acreage
0.2147
Classification
R
Land Use Code
TWO FAMILY
Legal Description
161 MOTT ST TR 51 93.83 X 99.66
Square Feet
2240
Topo
LEVEL
Utility
ALL PUBLIC
Zoning
Please contact your municipal zoning officer
Deed Book
1282
Deed Page
0685
2026 Tax Values
Land Value / Taxable
13,800 / 13,800.00
Building Value / Taxable
46,560 / 46,560.00
Total Value / Taxable
60,360 / 60,360.00
Clean & Green
Inactive
Homestead Status
Inactive
Farmstead Status
Inactive
Lerta Amount
0
Lerta Expiration Year
0
Residential Data
Card 1
Style
OLD STYLE
Basement
PART
Year Built
1900
Exterior Wall
ALUMINUM/VINYL
Total Living Area
2240
Full Baths
2
Half Baths
0
Fuel Type
GAS
Heating
CENTRAL
Heating System
FORCED AIR
Stories
2.0
Total Bedrooms
4
Total Family Rooms
0
Total Rooms
8
Fireplaces
0
Other Buildings & Yards
Description
Built
Width
Length
Area
BRICK OR STONE DETACHED GAR.
1930
30
20
600
Sales History
Sale Date
Type
Price
Book / Page
Other Info
10/28/2005
LAND & BUILDING
26000
1282 / 0685
DEED
8/10/2005
LAND & BUILDING
0
1259 / 0873
QUIT CLAIM DEED
4/23/1996
LAND & BUILDING
14501
437 / 820
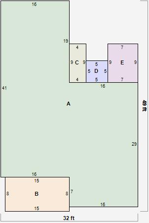
Parcel Sketches
Residential Card 1
A
MAIN
1120 square feet
B
EFP ENCL FRAME PORCH EFP ENCL FRAME PORCH
120 square feet
C
EFP ENCL FRAME PORCH WDDCK WOOD DECKS
36 square feet
D
MA_PT CONC/MAS PATIO WDDCK WOOD DECKS
25 square feet
E
MA_PT CONC/MAS PATIO
63 square feet
Parcel Images
Please note:
this tab is for informational purposes only and may not show all delinquencies, see the Taxes tab for more accurate delinquent taxes due.