Elected Officials
Courts
Departments
Initiatives
Open Government
About
Login / Register
Home
/
Property & Tax Records
/
Property Records
/
Property & Tax Search
/
Parcel Profile
/
Print View
Search for Another Parcel
Parcel Profile
Historical Card
Sketches
Photos
Tax Map
Taxes
Print View
Print This Page
Address: 147 1471/2 MOTT ST
Parcel: 07026081000900
Parcel Profile
Address
147 | 1471/2 | MOTT | ST
Street Status
PAVED | SIDEWALK
School District
CORRY AREA SCHOOL
Acreage
0.1144
Classification
R
Land Use Code
THREE FAMILY
Legal Description
147 MOTT ST TR 51 50 X 99.66
Square Feet
2508
Topo
LEVEL
Utility
ALL PUBLIC
Zoning
Please contact your municipal zoning officer
Deed Book
0334
Deed Page
1711
2025 Tax Values
Land Value / Taxable
12,000 / 12,000.00
Building Value / Taxable
44,220 / 44,220.00
Total Value / Taxable
56,220 / 56,220.00
Clean & Green
Inactive
Homestead Status
Inactive
Farmstead Status
Inactive
Lerta Amount
0
Lerta Expiration Year
0
Residential Data
Card 1
Style
OLD STYLE
Basement
FULL
Year Built
1900
Exterior Wall
ALUMINUM/VINYL
Total Living Area
2508
Full Baths
3
Half Baths
0
Fuel Type
GAS
Heating
CENTRAL
Heating System
FORCED AIR
Stories
2.0
Total Bedrooms
6
Total Family Rooms
0
Total Rooms
12
Fireplaces
0
Other Buildings & Yards
No OBY Data Found
Sales History
Sale Date
Type
Price
Book / Page
Other Info
5/17/1994
0
0334 / 1711
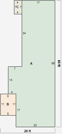
Parcel Sketches
Residential Card 1
A
MAIN
1254 square feet
B
OFP OPEN FRAME PORCH
88 square feet
C
OFP OPEN FRAME PORCH
28 square feet
Parcel Images