Elected Officials
Courts
Departments
Initiatives
Open Government
About
Login / Register
Home
/
Property & Tax Records
/
Property Records
/
Property & Tax Search
/
Parcel Profile
/
Print View
Search for Another Parcel
Parcel Profile
Historical Card
Sketches
Photos
Tax Map
Taxes
Print View
Print This Page
Address: 121 MOTT ST
Parcel: 07026081001300
Parcel Profile
Address
121 | MOTT | ST
Street Status
PAVED | SIDEWALK
School District
CORRY AREA SCHOOL
Acreage
0.1123
Classification
R
Land Use Code
SINGLE FAMILY
Legal Description
121 MOTT ST 48.9 X 100
Square Feet
1908
Topo
LEVEL
Utility
ALL PUBLIC
Zoning
Please contact your municipal zoning officer
Deed Book
2024
Deed Page
020591
2026 Tax Values
Land Value / Taxable
12,500 / 12,500.00
Building Value / Taxable
64,600 / 64,600.00
Total Value / Taxable
77,100 / 77,100.00
Clean & Green
Inactive
Homestead Status
Inactive
Farmstead Status
Inactive
Lerta Amount
0
Lerta Expiration Year
0
Residential Data
Card 1
Style
CONVENTIONAL
Basement
FULL
Year Built
1930
Exterior Wall
BRICK
Total Living Area
1908
Full Baths
1
Half Baths
1
Fuel Type
GAS
Heating
CENTRAL
Heating System
HOT WATER
Stories
2.0
Total Bedrooms
3
Total Family Rooms
0
Total Rooms
7
Fireplaces
0
Other Buildings & Yards
No OBY Data Found
Sales History
Sale Date
Type
Price
Book / Page
Other Info
12/16/2024
LAND & BUILDING
50000
2024 / 020591
DEED
6/6/2014
LAND & BUILDING
72000
2014 / 011202
WARRANTY/SURVIVORSHIP DEED
6/1/2006
LAND & BUILDING
57700
1332 / 2356
DEED
5/6/1998
LAND & BUILDING
38000
560 / 1366
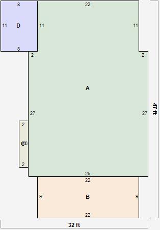
Parcel Sketches
Residential Card 1
A
MAIN
944 square feet
B
EMP ENCL MASONRY PORCH
198 square feet
C
UNFIN BSMT BASEMENT UNFINISHED 1SMAS MASONRY
20 square feet
D
OFP OPEN FRAME PORCH
88 square feet
Parcel Images
Please note:
this tab is for informational purposes only and may not show all delinquencies, see the Taxes tab for more accurate delinquent taxes due.