Elected Officials
Courts
Departments
Initiatives
Open Government
About
Login / Register
Home
/
Property & Tax Records
/
Property Records
/
Property & Tax Search
/
Parcel Profile
/
Print View
Search for Another Parcel
Parcel Profile
Historical Card
Sketches
Photos
Tax Map
Taxes
Print View
Print This Page
Address: 17 171/2 CLINTON ST
Parcel: 07026088001100
Parcel Profile
Address
17 | 171/2 | CLINTON | ST
Street Status
PAVED | SIDEWALK
School District
CORRY AREA SCHOOL
Acreage
0.1350
Classification
R
Land Use Code
TWO FAMILY
Legal Description
17 CLINTON ST 59 X 100
Square Feet
1908
Topo
LEVEL
Utility
ALL PUBLIC
Zoning
Please contact your municipal zoning officer
Deed Book
0899
Deed Page
0764
2026 Tax Values
Land Value / Taxable
12,900 / 12,900.00
Building Value / Taxable
57,700 / 57,700.00
Total Value / Taxable
70,600 / 70,600.00
Clean & Green
Inactive
Homestead Status
Inactive
Farmstead Status
Inactive
Lerta Amount
0
Lerta Expiration Year
0
Residential Data
Card 1
Style
OLD STYLE
Basement
FULL
Year Built
1900
Exterior Wall
ALUMINUM/VINYL
Total Living Area
1908
Full Baths
2
Half Baths
1
Fuel Type
GAS
Heating
CENTRAL A/C
Heating System
FORCED AIR
Stories
2.0
Total Bedrooms
6
Total Family Rooms
0
Total Rooms
11
Fireplaces
0
Other Buildings & Yards
Description
Built
Width
Length
Area
FRAME OR CB DETACHED GARAGE
1947
20
22
440
Sales History
Sale Date
Type
Price
Book / Page
Other Info
7/11/2002
LAND & BUILDING
40000
0899 / 0764
DEED
6/8/1998
LAND & BUILDING
40000
0566 / 2149
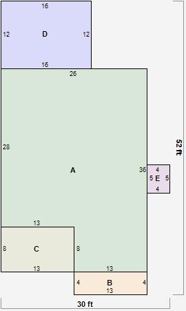
Parcel Sketches
Residential Card 1
A
MAIN
832 square feet
B
UNFIN BSMT BASEMENT UNFINISHED 1S FR ONE STORY FRAME
52 square feet
C
EFP ENCL FRAME PORCH EFP ENCL FRAME PORCH
104 square feet
D
1S FR ONE STORY FRAME
192 square feet
E
OFP OPEN FRAME PORCH
20 square feet
Parcel Images
Please note:
this tab is for informational purposes only and may not show all delinquencies, see the Taxes tab for more accurate delinquent taxes due.