Elected Officials
Courts
Departments
Initiatives
Open Government
About
Login / Register
Home
/
Property & Tax Records
/
Property Records
/
Property & Tax Search
/
Parcel Profile
/
Print View
Search for Another Parcel
Parcel Profile
Historical Card
Sketches
Photos
Tax Map
Taxes
Print View
Print This Page
Address: 125 FOURTH AVE
Parcel: 08033140000400
Parcel Profile
Address
125 | FOURTH | AVE
Street Status
PAVED | SIDEWALK
School District
CORRY AREA SCHOOL
Acreage
0.1492
Classification
R
Land Use Code
SINGLE FAMILY
Legal Description
125 FOURTH AVE 65 X 100
Square Feet
992
Topo
LEVEL
Utility
ALL PUBLIC
Zoning
Please contact your municipal zoning officer
Deed Book
686
Deed Page
1773
2026 Tax Values
Land Value / Taxable
4,700 / 4,700.00
Building Value / Taxable
19,990 / 19,990.00
Total Value / Taxable
24,690 / 24,690.00
Clean & Green
Inactive
Homestead Status
Inactive
Farmstead Status
Inactive
Lerta Amount
0
Lerta Expiration Year
0
Residential Data
Card 1
Style
BUNGALOW
Basement
PART
Year Built
1880
Exterior Wall
ALUMINUM/VINYL
Total Living Area
992
Full Baths
1
Half Baths
0
Fuel Type
GAS
Heating
CENTRAL
Heating System
HOT WATER
Stories
1.0
Total Bedrooms
3
Total Family Rooms
0
Total Rooms
5
Fireplaces
0
Other Buildings & Yards
No OBY Data Found
Sales History
Sale Date
Type
Price
Book / Page
Other Info
2/3/2000
LAND & BUILDING
10000
0686 / 1773
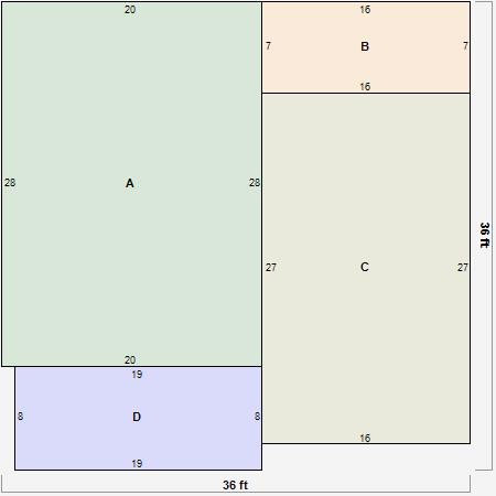
Parcel Sketches
Residential Card 1
A
MAIN
560 square feet
B
OFP OPEN FRAME PORCH
112 square feet
C
UNFIN BSMT BASEMENT UNFINISHED 1S FR ONE STORY FRAME
432 square feet
D
OFP OPEN FRAME PORCH
152 square feet
Parcel Images
Please note:
this tab is for informational purposes only and may not show all delinquencies, see the Taxes tab for more accurate delinquent taxes due.