Elected Officials
Courts
Departments
Initiatives
Open Government
About
Login / Register
Home
/
Property & Tax Records
/
Property Records
/
Property & Tax Search
/
Parcel Profile
/
Print View
Search for Another Parcel
Parcel Profile
Historical Card
Sketches
Photos
Tax Map
Taxes
Print View
Print This Page
Address: 102 W PLEASANT ST
Parcel: 08033148000200
Parcel Profile
Address
102 | W | PLEASANT | ST
Street Status
PAVED | SIDEWALK
School District
CORRY AREA SCHOOL
Acreage
0.1418
Classification
R
Land Use Code
SINGLE FAMILY
Legal Description
102 W PLEASANT ST TR 51 95X65
Square Feet
2996
Topo
LEVEL
Utility
ALL PUBLIC
Zoning
Please contact your municipal zoning officer
Deed Book
2023
Deed Page
000170
2026 Tax Values
Land Value / Taxable
4,600 / 4,600.00
Building Value / Taxable
33,400 / 33,400.00
Total Value / Taxable
38,000 / 38,000.00
Clean & Green
Inactive
Homestead Status
Inactive
Farmstead Status
Inactive
Lerta Amount
0
Lerta Expiration Year
0
Residential Data
Card 1
Style
OLD STYLE
Basement
PART
Year Built
1870
Exterior Wall
FRAME
Total Living Area
2996
Full Baths
1
Half Baths
0
Fuel Type
GAS
Heating
CENTRAL
Heating System
FORCED AIR
Stories
2.0
Total Bedrooms
4
Total Family Rooms
0
Total Rooms
8
Fireplaces
0
Other Buildings & Yards
No OBY Data Found
Sales History
Sale Date
Type
Price
Book / Page
Other Info
1/4/2023
LAND & BUILDING
27000
2023 / 000170
FIDUCIARY DEED
12/12/2011
LAND & BUILDING
7000
2011 / 029783
DEED
8/3/1976
0
1231 / 0102
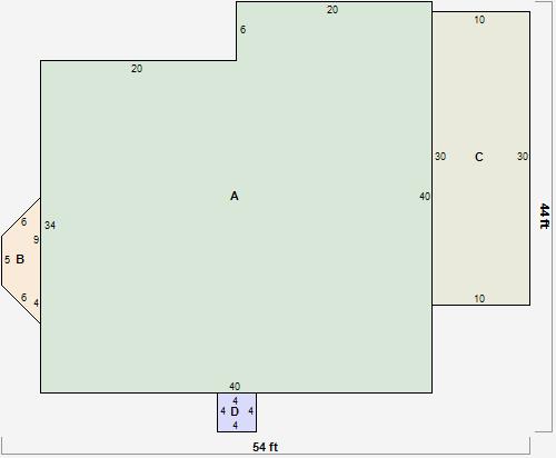
Parcel Sketches
Residential Card 1
A
MAIN
1480 square feet
B
UNFIN BSMT BASEMENT UNFINISHED FRBAY FRAME BAY
36 square feet
C
OFP OPEN FRAME PORCH
300 square feet
D
CANPY CANOPY
16 square feet
Parcel Images
Please note:
this tab is for informational purposes only and may not show all delinquencies, see the Taxes tab for more accurate delinquent taxes due.