Elected Officials
Courts
Departments
Initiatives
Open Government
About
Login / Register
Home
/
Property & Tax Records
/
Property Records
/
Property & Tax Search
/
Parcel Profile
/
Print View
Search for Another Parcel
Parcel Profile
Historical Card
Sketches
Photos
Tax Map
Taxes
Print View
Print This Page
Address: 215 S CENTER ST
Parcel: 08033154000500
Parcel Profile
Address
215 | S | CENTER | ST
Street Status
PAVED | SIDEWALK
School District
CORRY AREA SCHOOL
Acreage
0.1767
Classification
R
Land Use Code
SINGLE FAMILY
Legal Description
215 S CENTER ST 57X135
Square Feet
2608
Topo
LEVEL
Utility
ALL PUBLIC
Zoning
Please contact your municipal zoning officer
Deed Book
2024
Deed Page
014889
2026 Tax Values
Land Value / Taxable
4,800 / 4,800.00
Building Value / Taxable
102,400 / 102,400.00
Total Value / Taxable
107,200 / 107,200.00
Clean & Green
Inactive
Homestead Status
Active
Farmstead Status
Inactive
Lerta Amount
0
Lerta Expiration Year
0
Residential Data
Card 1
Style
OLD STYLE
Basement
FULL
Year Built
1915
Exterior Wall
BRICK
Total Living Area
2608
Full Baths
2
Half Baths
0
Fuel Type
GAS
Heating
CENTRAL
Heating System
HOT WATER
Stories
2.0
Total Bedrooms
4
Total Family Rooms
0
Total Rooms
10
Fireplaces
0
Other Buildings & Yards
Description
Built
Width
Length
Area
FRAME OR CB DETACHED GARAGE
1915
28
23
644
Sales History
Sale Date
Type
Price
Book / Page
Other Info
9/16/2024
LAND & BUILDING
145000
2024 / 014889
SPECIAL WARRANTY DEED
4/9/2015
LAND & BUILDING
69900
2015 / 006648
WARRANTY/SURVIVORSHIP DEED
4/28/2000
LAND & BUILDING
65000
700 / 645
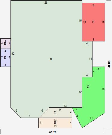
Parcel Sketches
Residential Card 1
A
MAIN
1276 square feet
B
OFP OPEN FRAME PORCH
52 square feet
C
OFP OPEN FRAME PORCH OFP OPEN FRAME PORCH
44 square feet
D
MABAY MASONRY BAY MABAY MASONRY BAY
28 square feet
E
OFP OPEN FRAME PORCH
16 square feet
F
EFP ENCL FRAME PORCH
135 square feet
G
EFP ENCL FRAME PORCH
189 square feet
Parcel Images
Please note:
this tab is for informational purposes only and may not show all delinquencies, see the Taxes tab for more accurate delinquent taxes due.