Elected Officials
Courts
Departments
Initiatives
Open Government
About
Login / Register
Home
/
Property & Tax Records
/
Property Records
/
Property & Tax Search
/
Parcel Profile
/
Print View
Search for Another Parcel
Parcel Profile
Historical Card
Sketches
Photos
Tax Map
Taxes
Print View
Print This Page
Address: 105 BROOK ST
Parcel: 08033155000400
Parcel Profile
Address
105 | BROOK | ST
Street Status
PAVED
School District
CORRY AREA SCHOOL
Acreage
0.3202
Classification
R
Land Use Code
SINGLE FAMILY
Legal Description
105 BROOK ST TR 52 90X155
Square Feet
1311
Topo
LEVEL
Utility
ALL PUBLIC
Zoning
Please contact your municipal zoning officer
Deed Book
1433
Deed Page
1806
2026 Tax Values
Land Value / Taxable
5,500 / 5,500.00
Building Value / Taxable
55,300 / 55,300.00
Total Value / Taxable
60,800 / 60,800.00
Clean & Green
Inactive
Homestead Status
Active
Farmstead Status
Inactive
Lerta Amount
0
Lerta Expiration Year
0
Residential Data
Card 1
Style
CONVENTIONAL
Basement
FULL
Year Built
1930
Exterior Wall
ALUMINUM/VINYL
Total Living Area
1311
Full Baths
1
Half Baths
1
Fuel Type
GAS
Heating
CENTRAL A/C
Heating System
FORCED AIR
Stories
2.0
Total Bedrooms
3
Total Family Rooms
0
Total Rooms
5
Fireplaces
0
Other Buildings & Yards
Description
Built
Width
Length
Area
FRAME OR CB DETACHED GARAGE
1930
18
24
432
Sales History
Sale Date
Type
Price
Book / Page
Other Info
7/24/2007
LAND & BUILDING
68000
1433 / 1806
SPECIAL WARRANTY DEED
1/25/1991
0
0149 / 0251
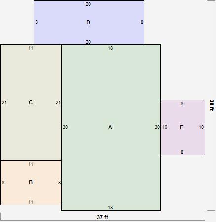
Parcel Sketches
Residential Card 1
A
MAIN
540 square feet
B
EFP ENCL FRAME PORCH
88 square feet
C
UNFIN BSMT BASEMENT UNFINISHED 1S FR ONE STORY FRAME
231 square feet
D
OFP OPEN FRAME PORCH
160 square feet
E
OFP OPEN FRAME PORCH
80 square feet
Parcel Images
Please note:
this tab is for informational purposes only and may not show all delinquencies, see the Taxes tab for more accurate delinquent taxes due.