Elected Officials
Courts
Departments
Initiatives
Open Government
About
Login / Register
Home
/
Property & Tax Records
/
Property Records
/
Property & Tax Search
/
Parcel Profile
/
Print View
Search for Another Parcel
Parcel Profile
Historical Card
Sketches
Photos
Tax Map
Taxes
Print View
Print This Page
Address: 12 W CHURCH ST
Parcel: 08033156000400
Parcel Profile
Address
12 | W | CHURCH | ST
Street Status
PAVED | SIDEWALK
School District
CORRY AREA SCHOOL
Acreage
0.0579
Classification
R
Land Use Code
SINGLE FAMILY
Legal Description
12 W CHURCH ST TR 52 56 X 45
Square Feet
1208
Topo
LEVEL
Utility
ALL PUBLIC
Zoning
Please contact your municipal zoning officer
Deed Book
2018
Deed Page
000638
2026 Tax Values
Land Value / Taxable
3,800 / 3,800.00
Building Value / Taxable
45,000 / 45,000.00
Total Value / Taxable
48,800 / 48,800.00
Clean & Green
Inactive
Homestead Status
Inactive
Farmstead Status
Inactive
Lerta Amount
0
Lerta Expiration Year
0
Residential Data
Card 1
Style
OLD STYLE
Basement
FULL
Year Built
1900
Exterior Wall
ALUMINUM/VINYL
Total Living Area
1208
Full Baths
1
Half Baths
0
Fuel Type
GAS
Heating
CENTRAL
Heating System
HOT WATER
Stories
2.0
Total Bedrooms
3
Total Family Rooms
0
Total Rooms
6
Fireplaces
1
Other Buildings & Yards
Description
Built
Width
Length
Area
FRAME OR CB DETACHED GARAGE
1950
12
20
240
Sales History
Sale Date
Type
Price
Book / Page
Other Info
1/10/2018
LAND & BUILDING
0
2018 / 000638
QUIT CLAIM DEED
6/15/2005
LAND & BUILDING
67000
1242 / 1502
DEED
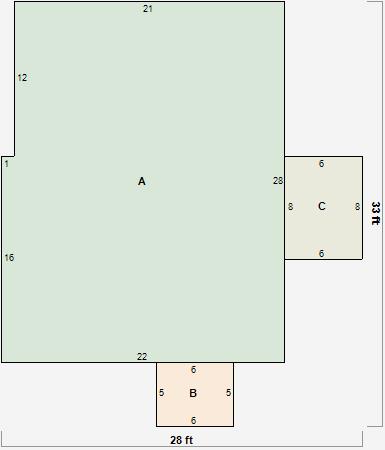
Parcel Sketches
Residential Card 1
A
MAIN
604 square feet
B
OFP OPEN FRAME PORCH
30 square feet
C
OFP OPEN FRAME PORCH
48 square feet
Parcel Images
Please note:
this tab is for informational purposes only and may not show all delinquencies, see the Taxes tab for more accurate delinquent taxes due.