Elected Officials
Courts
Departments
Initiatives
Open Government
About
Login / Register
Home
/
Property & Tax Records
/
Property Records
/
Property & Tax Search
/
Parcel Profile
/
Print View
Search for Another Parcel
Parcel Profile
Historical Card
Sketches
Photos
Tax Map
Taxes
Print View
Print This Page
Address: 315 S CENTER ST
Parcel: 08033156000800
Parcel Profile
Address
315 | S | CENTER | ST
Street Status
PAVED | SIDEWALK
School District
CORRY AREA SCHOOL
Acreage
0.2045
Classification
R
Land Use Code
THREE FAMILY
Legal Description
315 S CENTER ST TR 52 66X135
Square Feet
2281
Topo
LEVEL
Utility
ALL PUBLIC
Zoning
Please contact your municipal zoning officer
Deed Book
2021
Deed Page
022659
2026 Tax Values
Land Value / Taxable
4,900 / 4,900.00
Building Value / Taxable
44,240 / 44,240.00
Total Value / Taxable
49,140 / 49,140.00
Clean & Green
Inactive
Homestead Status
Inactive
Farmstead Status
Inactive
Lerta Amount
0
Lerta Expiration Year
0
Residential Data
Card 1
Style
OLD STYLE
Basement
NONE
Year Built
1880
Exterior Wall
FRAME
Total Living Area
2281
Full Baths
3
Half Baths
0
Fuel Type
GAS
Heating
CENTRAL
Heating System
FORCED AIR
Stories
2.0
Total Bedrooms
5
Total Family Rooms
0
Total Rooms
12
Fireplaces
0
Other Buildings & Yards
No OBY Data Found
Sales History
Sale Date
Type
Price
Book / Page
Other Info
8/24/2021
LAND & BUILDING
40000
2021 / 022659
SPECIAL WARRANTY DEED
3/28/2016
LAND & BUILDING
55000
2016 / 005855
SPECIAL WARRANTY DEED
7/31/2013
LAND & BUILDING
60000
2013 / 019919
SPECIAL WARRANTY DEED
12/20/1996
LAND & BUILDING
23500
0477 / 0085
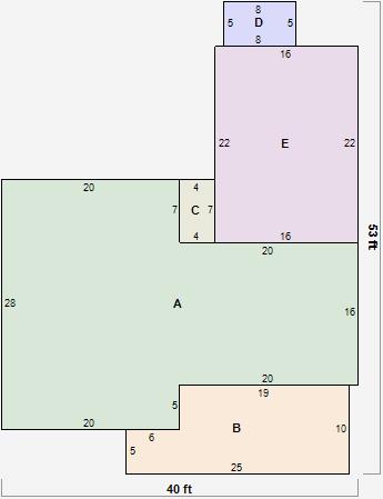
Parcel Sketches
Residential Card 1
A
MAIN
880 square feet
B
OFP OPEN FRAME PORCH
220 square feet
C
1S FR ONE STORY FRAME
28 square feet
D
OFP OPEN FRAME PORCH
40 square feet
E
UNFIN BSMT BASEMENT UNFINISHED 1S FR ONE STORY FRAME AT FN ATTIC-FINISHED
352 square feet
Parcel Images
Please note:
this tab is for informational purposes only and may not show all delinquencies, see the Taxes tab for more accurate delinquent taxes due.