Elected Officials
Courts
Departments
Initiatives
Open Government
About
Login / Register
Home
/
Property & Tax Records
/
Property Records
/
Property & Tax Search
/
Parcel Profile
/
Print View
Search for Another Parcel
Parcel Profile
Historical Card
Sketches
Photos
Tax Map
Taxes
Print View
Print This Page
Address: 213 NORTHWEST ST
Parcel: 08034130000400
Parcel Profile
Address
213 | NORTHWEST | ST
Street Status
PAVED | SIDEWALK
School District
CORRY AREA SCHOOL
Acreage
0.1148
Classification
R
Land Use Code
SINGLE FAMILY
Legal Description
213 NORTHWEST ST TR 51 50 X 100
Square Feet
1056
Topo
LEVEL | ROLLING
Utility
ALL PUBLIC
Zoning
Please contact your municipal zoning officer
Deed Book
2024
Deed Page
018157
2026 Tax Values
Land Value / Taxable
4,500 / 4,500.00
Building Value / Taxable
30,600 / 30,600.00
Total Value / Taxable
35,100 / 35,100.00
Clean & Green
Inactive
Homestead Status
Inactive
Farmstead Status
Inactive
Lerta Amount
0
Lerta Expiration Year
0
Residential Data
Card 1
Style
OLD STYLE
Basement
FULL
Year Built
1920
Exterior Wall
FRAME
Total Living Area
1056
Full Baths
2
Half Baths
0
Fuel Type
GAS
Heating
CENTRAL
Heating System
FORCED AIR
Stories
1.5
Total Bedrooms
4
Total Family Rooms
0
Total Rooms
12
Fireplaces
0
Other Buildings & Yards
Description
Built
Width
Length
Area
FRAME OR CB DETACHED GARAGE
1920
20
22
440
Sales History
Sale Date
Type
Price
Book / Page
Other Info
11/4/2024
LAND & BUILDING
0
2024 / 018157
SPECIAL WARRANTY DEED
4/27/2017
LAND & BUILDING
39800
2017 / 008458
WARRANTY/SURVIVORSHIP DEED
2/28/2012
LAND & BUILDING
0
2012 / 005026
TAX DEED
6/13/2005
LAND & BUILDING
0
1241 / 2291
DEED
9/11/1996
LAND & BUILDING
24000
460 / 2155
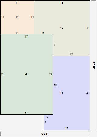
Parcel Sketches
Residential Card 1
A
MAIN
442 square feet
B
WDDCK WOOD DECKS
121 square feet
C
1S FR ONE STORY FRAME
282 square feet
D
EFP ENCL FRAME PORCH
303 square feet
Parcel Images
Please note:
this tab is for informational purposes only and may not show all delinquencies, see the Taxes tab for more accurate delinquent taxes due.