Elected Officials
Courts
Departments
Initiatives
Open Government
About
Login / Register
Home
/
Property & Tax Records
/
Property Records
/
Property & Tax Search
/
Parcel Profile
/
Print View
Search for Another Parcel
Parcel Profile
Historical Card
Sketches
Photos
Tax Map
Taxes
Print View
Print This Page
Address: 568 W CHURCH ST
Parcel: 08034136000200
Parcel Profile
Address
568 | W | CHURCH | ST
Street Status
PAVED | SIDEWALK
School District
CORRY AREA SCHOOL
Acreage
0.2066
Classification
R
Land Use Code
SINGLE FAMILY
Legal Description
568 W CHURCH ST 50.29X182 IRR
Square Feet
2040
Topo
LEVEL | ROLLING
Utility
ALL PUBLIC
Zoning
Please contact your municipal zoning officer
Deed Book
0801
Deed Page
1212
2026 Tax Values
Land Value / Taxable
4,900 / 4,900.00
Building Value / Taxable
45,100 / 45,100.00
Total Value / Taxable
50,000 / 50,000.00
Clean & Green
Inactive
Homestead Status
Inactive
Farmstead Status
Inactive
Lerta Amount
0
Lerta Expiration Year
0
Residential Data
Card 1
Style
OLD STYLE
Basement
CRAWL
Year Built
1920
Exterior Wall
ALUMINUM/VINYL
Total Living Area
2040
Full Baths
2
Half Baths
0
Fuel Type
GAS
Heating
CENTRAL
Heating System
FORCED AIR
Stories
2.0
Total Bedrooms
4
Total Family Rooms
1
Total Rooms
8
Fireplaces
0
Other Buildings & Yards
No OBY Data Found
Sales History
Sale Date
Type
Price
Book / Page
Other Info
8/16/2001
0
0801 / 1212
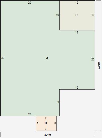
Parcel Sketches
Residential Card 1
A
MAIN
1020 square feet
B
EFP ENCL FRAME PORCH
35 square feet
C
OFP OPEN FRAME PORCH
120 square feet
Parcel Images
Please note:
this tab is for informational purposes only and may not show all delinquencies, see the Taxes tab for more accurate delinquent taxes due.