Elected Officials
Courts
Departments
Initiatives
Open Government
About
Login / Register
Home
/
Property & Tax Records
/
Property Records
/
Property & Tax Search
/
Parcel Profile
/
Print View
Search for Another Parcel
Parcel Profile
Historical Card
Sketches
Photos
Tax Map
Taxes
Print View
Print This Page
Address: 541 PROSPECT ST
Parcel: 08034136001800
Parcel Profile
Address
541 | PROSPECT | ST
Street Status
UNPAVED
School District
CORRY AREA SCHOOL
Acreage
0.2025
Classification
R
Land Use Code
SINGLE FAMILY
Legal Description
541 PROSPECT ST 101.38X104 IRR
Square Feet
1568
Topo
LEVEL | ROLLING
Utility
ALL PUBLIC
Zoning
Please contact your municipal zoning officer
Deed Book
0303
Deed Page
1120
2026 Tax Values
Land Value / Taxable
4,900 / 4,900.00
Building Value / Taxable
35,470 / 35,470.00
Total Value / Taxable
40,370 / 40,370.00
Clean & Green
Inactive
Homestead Status
Active
Farmstead Status
Inactive
Lerta Amount
0
Lerta Expiration Year
0
Residential Data
Card 1
Style
OLD STYLE
Basement
FULL
Year Built
1900
Exterior Wall
FRAME
Total Living Area
1568
Full Baths
2
Half Baths
0
Fuel Type
GAS
Heating
CENTRAL
Heating System
FORCED AIR
Stories
2.0
Total Bedrooms
3
Total Family Rooms
1
Total Rooms
8
Fireplaces
0
Other Buildings & Yards
No OBY Data Found
Sales History
Sale Date
Type
Price
Book / Page
Other Info
11/16/1993
0
0303 / 1120
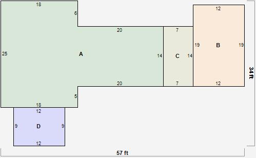
Parcel Sketches
Residential Card 1
A
MAIN
730 square feet
B
FR GR FRAME GARAGE
228 square feet
C
EFP ENCL FRAME PORCH
98 square feet
D
1S FR ONE STORY FRAME
108 square feet
Parcel Images