Elected Officials
Courts
Departments
Initiatives
Open Government
About
Login / Register
Home
/
Property & Tax Records
/
Property Records
/
Property & Tax Search
/
Parcel Profile
/
Print View
Search for Another Parcel
Parcel Profile
Historical Card
Sketches
Photos
Tax Map
Taxes
Print View
Print This Page
Address: 716 W PLEASANT ST
Parcel: 08034137000100
Parcel Profile
Address
716 | W | PLEASANT | ST
Street Status
PAVED
School District
CORRY AREA SCHOOL
Acreage
0.1578
Classification
R
Land Use Code
SINGLE FAMILY
Legal Description
716 W PLEASANT ST 62.5 X 110
Square Feet
1851
Topo
ABOVE STREET
Utility
ALL PUBLIC
Zoning
Please contact your municipal zoning officer
Deed Book
2022
Deed Page
008147
2026 Tax Values
Land Value / Taxable
4,700 / 4,700.00
Building Value / Taxable
43,780 / 43,780.00
Total Value / Taxable
48,480 / 48,480.00
Clean & Green
Inactive
Homestead Status
Inactive
Farmstead Status
Inactive
Lerta Amount
0
Lerta Expiration Year
0
Residential Data
Card 1
Style
OLD STYLE
Basement
PART
Year Built
1831
Exterior Wall
ALUMINUM/VINYL
Total Living Area
1851
Full Baths
1
Half Baths
1
Fuel Type
GAS
Heating
CENTRAL
Heating System
HOT WATER
Stories
1.5
Total Bedrooms
2
Total Family Rooms
1
Total Rooms
8
Fireplaces
1
Other Buildings & Yards
Description
Built
Width
Length
Area
FRAME OR CB DETACHED GARAGE
1932
22
32
704
Sales History
Sale Date
Type
Price
Book / Page
Other Info
4/18/2022
LAND & BUILDING
17100
2022 / 008147
SPECIAL WARRANTY DEED
2/11/2022
LAND & BUILDING
1836
2022 / 003061
SHERIFF'S DED
9/5/1997
0
0517 / 0921
5/30/1997
LAND & BUILDING
14000
501 / 801
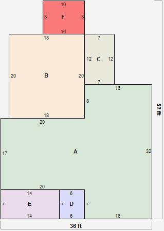
Parcel Sketches
Residential Card 1
A
MAIN
852 square feet
B
1S FR ONE STORY FRAME
360 square feet
C
EFP ENCL FRAME PORCH
84 square feet
D
EFP ENCL FRAME PORCH
42 square feet
E
OFP OPEN FRAME PORCH
98 square feet
F
WDDCK WOOD DECKS
80 square feet
Parcel Images
Please note:
this tab is for informational purposes only and may not show all delinquencies, see the Taxes tab for more accurate delinquent taxes due.