Elected Officials
Courts
Departments
Initiatives
Open Government
About
Login / Register
Home
/
Property & Tax Records
/
Property Records
/
Property & Tax Search
/
Parcel Profile
/
Print View
Search for Another Parcel
Parcel Profile
Historical Card
Sketches
Photos
Tax Map
Taxes
Print View
Print This Page
Address: 712 W PLEASANT ST
Parcel: 08034137000200
Parcel Profile
Address
712 | W | PLEASANT | ST
Street Status
PAVED | SIDEWALK
School District
CORRY AREA SCHOOL
Acreage
0.1865
Classification
R
Land Use Code
THREE FAMILY
Legal Description
712 W PLEASANT ST 62.5 X 130
Square Feet
2916
Topo
LEVEL | ROLLING
Utility
ALL PUBLIC
Zoning
Please contact your municipal zoning officer
Deed Book
624
Deed Page
10
2026 Tax Values
Land Value / Taxable
4,800 / 4,800.00
Building Value / Taxable
32,030 / 32,030.00
Total Value / Taxable
36,830 / 36,830.00
Clean & Green
Inactive
Homestead Status
Inactive
Farmstead Status
Inactive
Lerta Amount
0
Lerta Expiration Year
0
Residential Data
Card 1
Style
OLD STYLE
Basement
PART
Year Built
1900
Exterior Wall
ALUMINUM/VINYL
Total Living Area
2916
Full Baths
3
Half Baths
0
Fuel Type
GAS
Heating
CENTRAL
Heating System
FORCED AIR
Stories
2.0
Total Bedrooms
6
Total Family Rooms
0
Total Rooms
11
Fireplaces
0
Other Buildings & Yards
No OBY Data Found
Sales History
Sale Date
Type
Price
Book / Page
Other Info
3/17/1999
LAND & BUILDING
22500
0624 / 0010
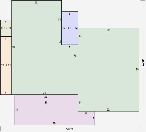
Parcel Sketches
Residential Card 1
A
MAIN
1380 square feet
B
UNFIN BSMT BASEMENT UNFINISHED 1S FR ONE STORY FRAME
84 square feet
C
OFP OPEN FRAME PORCH
24 square feet
D
1S FR ONE STORY FRAME
72 square feet
E
OFP OPEN FRAME PORCH
283 square feet
Parcel Images
Please note:
this tab is for informational purposes only and may not show all delinquencies, see the Taxes tab for more accurate delinquent taxes due.