Elected Officials
Courts
Departments
Initiatives
Open Government
About
Login / Register
Home
/
Property & Tax Records
/
Property Records
/
Property & Tax Search
/
Parcel Profile
/
Print View
Search for Another Parcel
Parcel Profile
Historical Card
Sketches
Photos
Tax Map
Taxes
Print View
Print This Page
Address: 571 W CHURCH ST
Parcel: 08034137001800
Parcel Profile
Address
571 | W | CHURCH | ST
Street Status
PAVED
School District
CORRY AREA SCHOOL
Acreage
0.1806
Classification
R
Land Use Code
SINGLE FAMILY
Legal Description
571 W CHURCH ST TR 51 65 X 121
Square Feet
2135
Topo
LEVEL | ROLLING
Utility
ALL PUBLIC
Zoning
Please contact your municipal zoning officer
Deed Book
2016
Deed Page
018921
2026 Tax Values
Land Value / Taxable
4,800 / 4,800.00
Building Value / Taxable
40,700 / 40,700.00
Total Value / Taxable
45,500 / 45,500.00
Clean & Green
Inactive
Homestead Status
Inactive
Farmstead Status
Inactive
Lerta Amount
0
Lerta Expiration Year
0
Residential Data
Card 1
Style
OLD STYLE
Basement
PART
Year Built
1900
Exterior Wall
COMPOSITION
Total Living Area
2135
Full Baths
1
Half Baths
1
Fuel Type
GAS
Heating
CENTRAL
Heating System
FORCED AIR
Stories
1.5
Total Bedrooms
5
Total Family Rooms
0
Total Rooms
8
Fireplaces
0
Other Buildings & Yards
No OBY Data Found
Sales History
Sale Date
Type
Price
Book / Page
Other Info
8/31/2016
LAND & BUILDING
43000
2016 / 018921
DEED
5/17/2005
LAND & BUILDING
10000
1234 / 1273
DEED
9/15/2004
LAND & BUILDING
0
1173 / 1469
SHERIFF'S DED
9/10/1986
24500
1648 / 0031
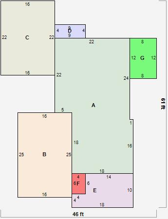
Parcel Sketches
Residential Card 1
A
MAIN
806 square feet
B
1S FR ONE STORY FRAME 1/2FR FRAME HALF-STORY
400 square feet
C
FR GR FRAME GARAGE
352 square feet
D
EFP ENCL FRAME PORCH
36 square feet
E
EFP ENCL FRAME PORCH
156 square feet
F
1S FR ONE STORY FRAME
24 square feet
G
WDDCK WOOD DECKS
96 square feet
Parcel Images
Please note:
this tab is for informational purposes only and may not show all delinquencies, see the Taxes tab for more accurate delinquent taxes due.