Elected Officials
Courts
Departments
Initiatives
Open Government
About
Login / Register
Home
/
Property & Tax Records
/
Property Records
/
Property & Tax Search
/
Parcel Profile
/
Print View
Search for Another Parcel
Parcel Profile
Historical Card
Sketches
Photos
Tax Map
Taxes
Print View
Print This Page
Address: 125 FIFTH ST
Parcel: 08034139000600
Parcel Profile
Address
125 | FIFTH | ST
Street Status
PAVED | SIDEWALK
School District
CORRY AREA SCHOOL
Acreage
0.1308
Classification
R
Land Use Code
SINGLE FAMILY
Legal Description
125 FIFTH ST 64 X 94.95 IRR
Square Feet
1637
Topo
LEVEL
Utility
ALL PUBLIC
Zoning
Please contact your municipal zoning officer
Deed Book
1319
Deed Page
1157
2026 Tax Values
Land Value / Taxable
4,600 / 4,600.00
Building Value / Taxable
36,870 / 36,870.00
Total Value / Taxable
41,470 / 41,470.00
Clean & Green
Inactive
Homestead Status
Inactive
Farmstead Status
Inactive
Lerta Amount
0
Lerta Expiration Year
0
Residential Data
Card 1
Style
OLD STYLE
Basement
PART
Year Built
1900
Exterior Wall
COMPOSITION
Total Living Area
1637
Full Baths
1
Half Baths
0
Fuel Type
GAS
Heating
CENTRAL
Heating System
FORCED AIR
Stories
2.0
Total Bedrooms
4
Total Family Rooms
0
Total Rooms
7
Fireplaces
0
Other Buildings & Yards
Description
Built
Width
Length
Area
FRAME OR CB DETACHED GARAGE
2009
20
20
400
Sales History
Sale Date
Type
Price
Book / Page
Other Info
4/13/2006
LAND & BUILDING
18000
1319 / 1157
WARRANTY/SURVIVORSHIP DEED
3/17/1997
0
0488 / 0519
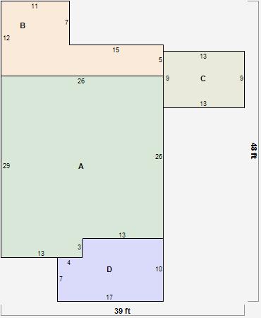
Parcel Sketches
Residential Card 1
A
MAIN
715 square feet
B
1S FR ONE STORY FRAME
207 square feet
C
EFP ENCL FRAME PORCH
117 square feet
D
EFP ENCL FRAME PORCH
158 square feet
Parcel Images
Please note:
this tab is for informational purposes only and may not show all delinquencies, see the Taxes tab for more accurate delinquent taxes due.