Elected Officials
Courts
Departments
Initiatives
Open Government
About
Login / Register
Home
/
Property & Tax Records
/
Property Records
/
Property & Tax Search
/
Parcel Profile
/
Print View
Search for Another Parcel
Parcel Profile
Historical Card
Sketches
Photos
Tax Map
Taxes
Print View
Print This Page
Address: 416 W CHURCH ST
Parcel: 08034144000200
Parcel Profile
Address
416 | W | CHURCH | ST
Street Status
PAVED
School District
CORRY AREA SCHOOL
Acreage
0.2066
Classification
R
Land Use Code
TWO FAMILY
Legal Description
416 W CHURCH ST 72X125
Square Feet
1940
Topo
ABOVE STREET
Utility
ALL PUBLIC
Zoning
Please contact your municipal zoning officer
Deed Book
2015
Deed Page
025847
2026 Tax Values
Land Value / Taxable
4,900 / 4,900.00
Building Value / Taxable
50,240 / 50,240.00
Total Value / Taxable
55,140 / 55,140.00
Clean & Green
Inactive
Homestead Status
Inactive
Farmstead Status
Inactive
Lerta Amount
0
Lerta Expiration Year
0
Residential Data
Card 1
Style
OLD STYLE
Basement
FULL
Year Built
1900
Exterior Wall
ALUMINUM/VINYL
Total Living Area
1940
Full Baths
1
Half Baths
1
Fuel Type
GAS
Heating
CENTRAL
Heating System
FORCED AIR
Stories
2.0
Total Bedrooms
4
Total Family Rooms
0
Total Rooms
10
Fireplaces
0
Other Buildings & Yards
Description
Built
Width
Length
Area
FLAT BARN
1900
20
24
480
CANOPY
1950
10
20
200
Sales History
Sale Date
Type
Price
Book / Page
Other Info
11/20/2015
LAND & BUILDING
51500
2015 / 025847
WARRANTY/SURVIVORSHIP DEED
8/28/2000
0
0722 / 2353
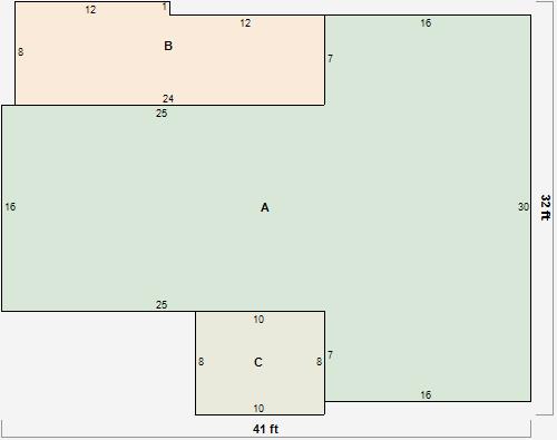
Parcel Sketches
Residential Card 1
A
MAIN
880 square feet
B
1S FR ONE STORY FRAME
180 square feet
C
OFP OPEN FRAME PORCH
80 square feet
Parcel Images
Please note:
this tab is for informational purposes only and may not show all delinquencies, see the Taxes tab for more accurate delinquent taxes due.