Elected Officials
Courts
Departments
Initiatives
Open Government
About
Login / Register
Home
/
Property & Tax Records
/
Property Records
/
Property & Tax Search
/
Parcel Profile
/
Print View
Search for Another Parcel
Parcel Profile
Historical Card
Sketches
Photos
Tax Map
Taxes
Print View
Print This Page
Address: 410 W CHURCH ST
Parcel: 08034144000300
Parcel Profile
Address
410 | W | CHURCH | ST
Street Status
PAVED
School District
CORRY AREA SCHOOL
Acreage
0.1875
Classification
R
Land Use Code
SINGLE FAMILY
Legal Description
410 W CHURCH ST TR 51
Square Feet
1848
Topo
ABOVE STREET
Utility
ALL PUBLIC
Zoning
Please contact your municipal zoning officer
Deed Book
2019
Deed Page
019628
2025 Tax Values
Land Value / Taxable
4,900 / 4,900.00
Building Value / Taxable
47,600 / 47,600.00
Total Value / Taxable
52,500 / 52,500.00
Clean & Green
Inactive
Homestead Status
Inactive
Farmstead Status
Inactive
Lerta Amount
0
Lerta Expiration Year
0
Residential Data
Card 1
Style
OLD STYLE
Basement
NONE
Year Built
1920
Exterior Wall
COMPOSITION
Total Living Area
1848
Full Baths
1
Half Baths
1
Fuel Type
GAS
Heating
CENTRAL
Heating System
FORCED AIR
Stories
2.0
Total Bedrooms
3
Total Family Rooms
0
Total Rooms
9
Fireplaces
0
Other Buildings & Yards
Description
Built
Width
Length
Area
FLAT BARN
1920
24
36
864
Sales History
Sale Date
Type
Price
Book / Page
Other Info
9/27/2019
LAND & BUILDING
40000
2019 / 019628
SPECIAL WARRANTY DEED
10/19/2010
LAND & BUILDING
0
2010 / 026053
QUIT CLAIM DEED
7/21/2010
LAND & BUILDING
25000
2010 / 017686
FIDUCIARY DEED
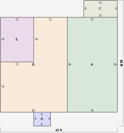
Parcel Sketches
Residential Card 1
A
MAIN
612 square feet
B
1S FR ONE STORY FRAME
624 square feet
C
EFP ENCL FRAME PORCH
72 square feet
D
EFP ENCL FRAME PORCH
30 square feet
E
WDDCK WOOD DECKS
192 square feet
Parcel Images