Elected Officials
Courts
Departments
Initiatives
Open Government
About
Login / Register
Home
/
Property & Tax Records
/
Property Records
/
Property & Tax Search
/
Parcel Profile
/
Print View
Search for Another Parcel
Parcel Profile
Historical Card
Sketches
Photos
Tax Map
Taxes
Print View
Print This Page
Address: 341 S 2 AVE
Parcel: 08034144000800
Parcel Profile
Address
341 | S | 2 | AVE
Street Status
PAVED
School District
CORRY AREA SCHOOL
Acreage
0.2251
Classification
R
Land Use Code
SINGLE FAMILY
Legal Description
341 S 2 AVE 74.5 X 132
Square Feet
2520
Topo
ABOVE STREET
Utility
ALL PUBLIC
Zoning
Please contact your municipal zoning officer
Deed Book
2023
Deed Page
007701
2026 Tax Values
Land Value / Taxable
5,000 / 5,000.00
Building Value / Taxable
39,070 / 39,070.00
Total Value / Taxable
44,070 / 44,070.00
Clean & Green
Inactive
Homestead Status
Inactive
Farmstead Status
Inactive
Lerta Amount
0
Lerta Expiration Year
0
Residential Data
Card 1
Style
OLD STYLE
Basement
PART
Year Built
1830
Exterior Wall
COMPOSITION
Total Living Area
2520
Full Baths
1
Half Baths
1
Fuel Type
GAS
Heating
CENTRAL
Heating System
FORCED AIR
Stories
2.0
Total Bedrooms
6
Total Family Rooms
0
Total Rooms
12
Fireplaces
0
Other Buildings & Yards
No OBY Data Found
Sales History
Sale Date
Type
Price
Book / Page
Other Info
5/18/2023
LAND & BUILDING
90000
2023 / 007701
SPECIAL WARRANTY DEED
4/9/2015
LAND & BUILDING
57000
2015 / 006663
WARRANTY/SURVIVORSHIP DEED
12/15/2008
LAND & BUILDING
30000
1535 / 1167
DEED
6/2/1998
0
0565 / 0375
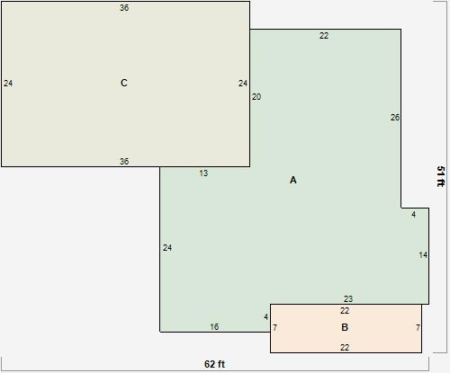
Parcel Sketches
Residential Card 1
A
MAIN
1260 square feet
B
OFP OPEN FRAME PORCH
154 square feet
C
FR GR FRAME GARAGE
864 square feet
Parcel Images
Please note:
this tab is for informational purposes only and may not show all delinquencies, see the Taxes tab for more accurate delinquent taxes due.