Elected Officials
Courts
Departments
Initiatives
Open Government
About
Login / Register
Home
/
Property & Tax Records
/
Property Records
/
Property & Tax Search
/
Parcel Profile
/
Print View
Search for Another Parcel
Parcel Profile
Historical Card
Sketches
Photos
Tax Map
Taxes
Print View
Print This Page
Address: 1249 W PLEASANT ST
Parcel: 08035121000900
Parcel Profile
Address
1249 | W | PLEASANT | ST
Street Status
UNPAVED
School District
CORRY AREA SCHOOL
Acreage
0.4242
Classification
R
Land Use Code
SINGLE FAMILY
Legal Description
1249 W PLEASANT ST 140 X 132
Square Feet
736
Topo
LEVEL | ROLLING
Utility
ALL PUBLIC
Zoning
Please contact your municipal zoning officer
Deed Book
2021
Deed Page
025657
2026 Tax Values
Land Value / Taxable
6,000 / 6,000.00
Building Value / Taxable
24,700 / 24,700.00
Total Value / Taxable
30,700 / 30,700.00
Clean & Green
Inactive
Homestead Status
Inactive
Farmstead Status
Inactive
Lerta Amount
0
Lerta Expiration Year
0
Residential Data
Card 1
Style
BUNGALOW
Basement
FULL
Year Built
1925
Exterior Wall
COMPOSITION
Total Living Area
736
Full Baths
1
Half Baths
0
Fuel Type
GAS
Heating
CENTRAL
Heating System
FORCED AIR
Stories
1.0
Total Bedrooms
3
Total Family Rooms
0
Total Rooms
7
Fireplaces
0
Other Buildings & Yards
Description
Built
Width
Length
Area
ONE SIDE OPEN WD POLE BLDG
2005
20
24
480
Sales History
Sale Date
Type
Price
Book / Page
Other Info
9/24/2021
LAND & BUILDING
0
2021 / 025657
SPECIAL WARRANTY DEED
4/20/1999
LAND & BUILDING
25300
0630 / 1785
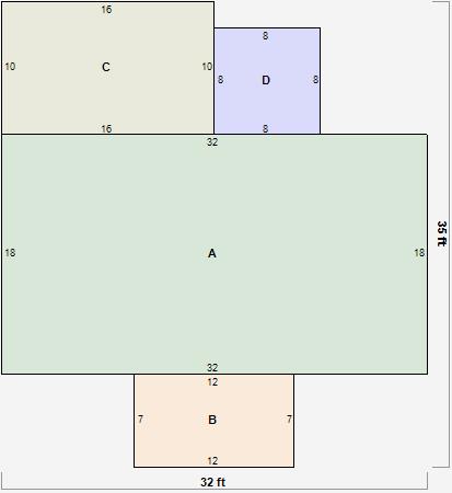
Parcel Sketches
Residential Card 1
A
MAIN
576 square feet
B
OFP OPEN FRAME PORCH
84 square feet
C
1S FR ONE STORY FRAME
160 square feet
D
EFP ENCL FRAME PORCH
64 square feet
Parcel Images
Please note:
this tab is for informational purposes only and may not show all delinquencies, see the Taxes tab for more accurate delinquent taxes due.